Request a visit or informationRequest a visit or information
Martine Demers

Martine Demers
Residential and Commercial Real Estate Broker

Cellular : 5147749563
Office : 4507053612


Add to my favorites
Bungalow for sale, Saint-Alphonse-Rodriguez |
$381,000 +GST/QST

Frontage
Frontage
1/9    Frontage
Frontage
2/9    Frontage
Frontage
3/9    Frontage
Overall View
4/9    Overall View
Overall View
5/9    Overall View
Living room
6/9    Living room
Bathroom
7/9    Bathroom
Bedroom
8/9    Bedroom
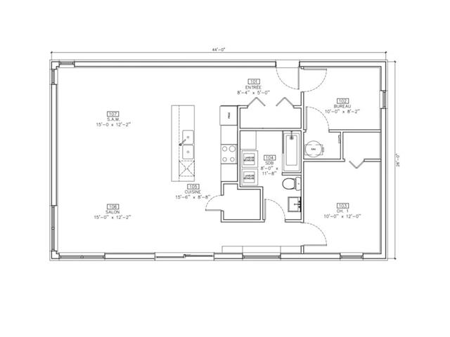
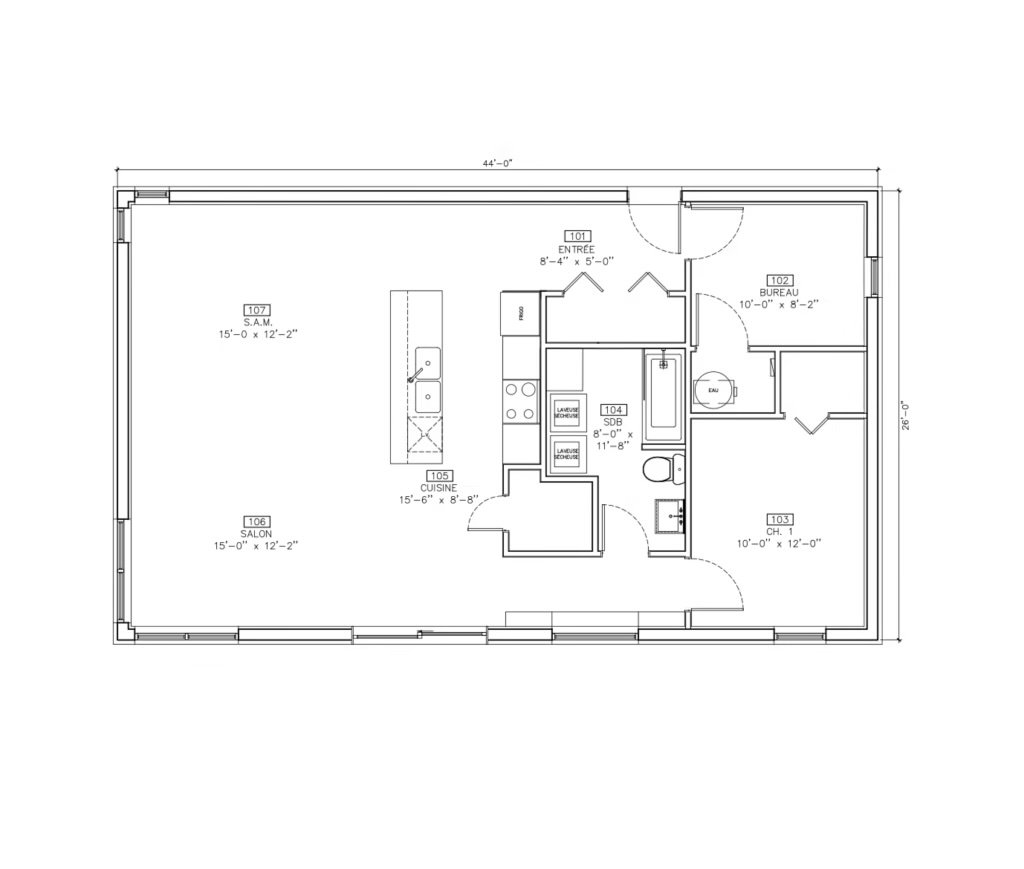
Drawing (sketch)
9/9    Drawing (sketch)

, Rue de la Rivière, Saint-Alphonse-Rodriguez
Centris No. 19850670

Room(s)

7 Room(s)

Bedroom(s)

2 Bedroom(s)

Bathroom(s)

1 Bathroom(s)

Detailed information

Characteristics

Property Type
Bungalow
Year of construction
To be built
Type of building
Detached
Trade possible
Building dimensions
44.00 ft. x 26.00 ft.
Living Area
Lot dimensions
Deed of Sale Signature
120 days
Zoning
Residential
Pool
Water supply
Artesian well
Parking (total)
Driveway
Not Paved, Double width or more
Roofing
Tin
Garage
Siding
Wood
Lot
Windows
Aluminum
Topography
Flat, Sloped
Window Type
French window, Crank handle
Distinctive Features
Energy/Heating
Electricity
View
Basement
No basement
Proximity
Bathroom
Distinctive features
Wooded lot: hardwood trees, Cul-de-sac, Water access
Sewage system
Septic tank, Purification field
Parking
Outdoor
Basement foundation
Concrete slab on the ground
Equipment available
Wall-mounted heat pump, Ventilation system
Heating system
Electric baseboard units
Dimensions
Width of the building
44.00 ft.
Depth building
26.00 ft.
Lot dimensions (Sq. ft.)
87,877.00 sq. ft.
Read more Read less

Room dimensions

Room(s) : 7    |   Bedroom(s) : 2    |   Bathroom(s) : 1    |    Powder room(s) : 0

Room(s)
Level
Dimensions
Type of flooring
Additional information
Hallway
Ground floor
8.4x5.0 ft.  
Ceramic tiles
Dining room
Ground floor
15.0x12.2 ft.  
Wood
Living room
Ground floor
15.0x12.2 ft.  
Wood
Kitchen
Ground floor
15.6x8.8 ft.  
Wood
Bathroom
Ground floor
8.0x11.8 ft.  
Ceramic tiles
Primary bedroom
Ground floor
10.0x12.0 ft.  
Wood
Home office
Ground floor
10.0x8.2 ft.  
Wood
Read more Read less

Calculators

Purchase price :
Interest rate :
Amortization:
Down payment:
Mortgage amount:
Ville:
Purchase price:
Payment :
You must specify the amount of the payment.
Payment frequency :
Interest rate :
Amortization period :
Down payment

In the same district