Request a visit or informationRequest a visit or information
Athyna Papachristou

Athyna Papachristou
Residential and Commercial Real Estate Broker

Cellular : 4506822000
Office : 5144651765
Fax : 4506822242


Add to my favorites
Condo for sale, Laval (Chomedey) |
$509,999

Frontage
Frontage
1/34    Frontage
Frontage
2/34    Frontage
Frontage
3/34    Frontage
Frontage
4/34    Frontage
Reception Area
5/34    Reception Area
Elevator
6/34    Elevator
Hallway
7/34    Hallway
Hallway
8/34    Hallway
Living room
9/34    Living room
Living room
10/34    Living room
Dining room
11/34    Dining room
Dining room
12/34    Dining room
Living room
13/34    Living room
Other
14/34    Other
Overall View
15/34    Overall View
Other
16/34    Other
Dinette
17/34    Dinette
Other
18/34    Other
Dinette
19/34    Dinette
Kitchen
20/34    Kitchen
Kitchen
21/34    Kitchen
Overall View
22/34    Overall View
Bedroom
23/34    Bedroom
Other
24/34    Other
Bathroom
25/34    Bathroom
Bathroom
26/34    Bathroom
Laundry room
27/34    Laundry room
Garage
28/34    Garage
Garage
29/34    Garage
Balcony
30/34    Balcony
Aerial photo
31/34    Aerial photo
Aerial photo
32/34    Aerial photo
Storage
33/34    Storage
Other
34/34    Other

3330, Boul. Le Carrefour, apt. 1206, Laval (Chomedey)
Centris No. 13637935

Room(s)

7 Room(s)

Bedroom(s)

2 Bedroom(s)

Bathroom(s)

1 Bathroom(s)

pi. ca.

88.60 m²

This bright and spacious 2-bedroom, 1-bathroom condo is located on the 12th floor of the renowned Latella building, offering unobstructed views and an open-concept layout with a kitchen and dinette area, living room, laundry room, and central air conditioning. Ideally situated in the heart of Chomedey, just steps from Carrefour Laval, and close to restaurants, grocery stores, highways 440 and 15, and Laval Junior High School. Includes 3 indoor parking spaces and 2 indoor storage spaces.

Detailed information

Characteristics

Property Type
Condo
Year of construction
2010
Type of building
Detached
Trade possible
Building dimensions
Living Area
88.60 m²
Lot dimensions
Deed of Sale Signature
30 days
Zoning
Residential
Pool
Water supply
Municipality
Parking (total)
Driveway
Roofing
Garage
Siding
Lot
Windows
Topography
Window Type
Distinctive Features
Energy/Heating
Electricity
View
City, Panoramic
Basement
Proximity
University, Public transport, High school, Cegep, Highway
Bathroom
Seperate shower
Sewage system
Municipal sewer
Parking
Garage
Equipment available
Central air conditioning
Available services
Balcony/terrace
Easy access
Elevator
Heating system
Electric baseboard units
Cupboard
Melamine
Dimensions
Living area
88.60 m²
Fees and taxes
School taxes :
$307 (2025)
Municipal Taxes :
$3,025 (2025)
Total
$3,332
Expenses / Energy (per year)
Co-ownership fees
$5,328
Municipal evaluation
Year
2027
Lot
$19,000
Building
$472,800
Total
$491,800
Read more Read less

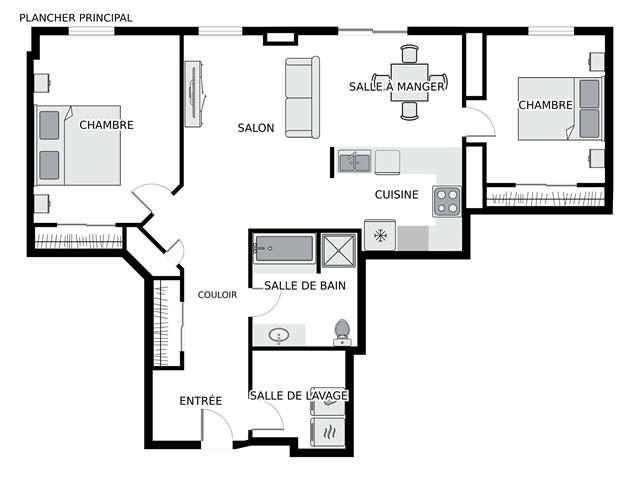
Room dimensions

Room(s) : 7    |   Bedroom(s) : 2    |   Bathroom(s) : 1    |    Powder room(s) : 0

Room(s)
Level
Dimensions
Type of flooring
Additional information
Living room
Other
11.1x8 ft.  
Wood
Kitchen
Other
8.2x9.1 ft.  
Wood
Dining room
Other
12.11x7.1 ft.  
Wood
Bedroom
Other
11.7x9 ft.  
Wood
Bedroom
Other
9.5x11.8 ft.  
Wood
Bathroom
Other
8.1x8.1 ft.  
Ceramic tiles
Laundry room
Other
7.6x7.1 ft.  
Ceramic tiles
Read more Read less

Inclusions


Fridge, stove, washer, dryer, dishwasher, stores

Addenda


Welcome to your new home in the heart of Chomedey, Laval!

Located in the prestigious Latella building, this elegant

12th-floor condo offers the perfect blend of comfort,

convenience, and breathtaking panoramic views. The unit

features two generously sized bedrooms, one full bathroom,

a dedicated laundry room, and an open-concept kitchen with

a cozy dinette area that flows into a bright and spacious

living room. Central air conditioning ensures year-round

comfort, and large windows offer unobstructed views from

the 12th floor.

This condo includes three indoor parking spaces and two

indoor storage units, providing added value and

convenience. Perfectly situated just steps from Carrefour

Laval, you'll have easy access to shopping, dining, grocery

stores, and more. Major highways 440 and 15 are nearby, as

well as Laval Junior High School, making this location

ideal for professionals, couples, and small families alike.

Parking SS2 #238,#239,#135

Storage #65

Read more Read less

Calculators

Purchase price :
Interest rate :
Amortization:
Down payment:
Mortgage amount:
Ville:
Purchase price:
Payment :
You must specify the amount of the payment.
Payment frequency :
Interest rate :
Amortization period :
Down payment

In the same district