You must log in to add entries to your favorites.
Log in
Request a visit or information

Gabrielle Rouleau
Residential Real Estate Broker
Cellular : 5146908965
4449, Av. de l'Esplanade,
apt. 1,
Montréal (Le Plateau-Mont-Royal)
Centris No. 10545101
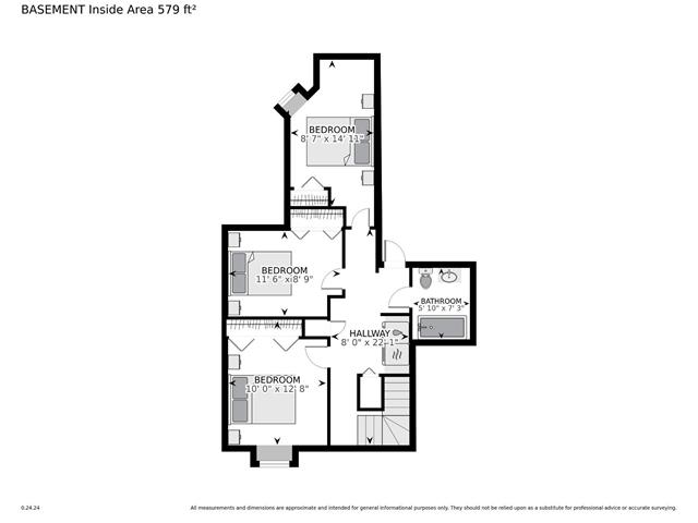
9 Room(s)
4 Bedroom(s)
2 Bathroom(s)
128.10 m²
***FULLY RENOVATED!*** Rare on the market! Condo located on the ground floor (with a basement) of 4 large bedrooms with 2 bathrooms (one with a sauna) on the Plateau Mont-Royal at the edge of the Mile-End. One of the bedrooms is on the ground floor, while the other three are in the basement. Heated concrete floors throughout the basement. Seize this opportunity to live across the street from Jeanne-Mance Park and the Mount Royal, giving you amazing views of greenery!
Room(s) : 9 | Bedroom(s) : 4 | Bathroom(s) : 2 | Powder room(s) : 0
Stereo system. Projector + screen. Fridge, oven, dishwasher, washer/dryer.
Electricity, heating, hot water. Wifi/cable.
Discover this contemporary style luxury condo, a
sophisticated look while offering modern comfort.
Exceptional location on a one-way street, facing
Jeanne-Mance Park and the Mount Royal. This newly renovated
property offers an unparalleled living environment, ideal
for lovers of outdoor activities.
Enjoy a spacious open-plan interior, bathed in natural
Read more Read less