Request a visit or informationRequest a visit or information
Nicolas Santorineos

Nicolas Santorineos
Residential and Commercial Real Estate Broker

Cellular : 5148864645


Add to my favorites
Condo for sale, Montréal (Mercier/Hochelaga-Maisonneuve) |
$432,500

Overall View
Overall View
1/13    Overall View
Overall View
2/13    Overall View
Overall View
3/13    Overall View
Dining room
4/13    Dining room
Living room
5/13    Living room
Overall View
6/13    Overall View
Basement
7/13    Basement
Bathroom
8/13    Bathroom
Primary bedroom
9/13    Primary bedroom
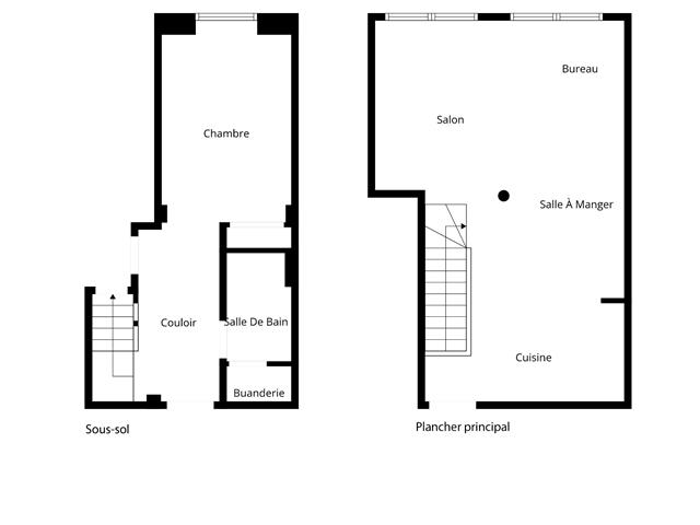
Drawing (sketch)
10/13    Drawing (sketch)
Storage
11/13    Storage
Other
12/13    Other
Frontage
13/13    Frontage

4951, Rue Ontario E., apt. 125, Montréal (Mercier/Hochelaga-Maisonneuve)
Centris No. 15893382

Room(s)

5 Room(s)

Bedroom(s)

1 Bedroom(s)

Bathroom(s)

1 Bathroom(s)

pi. ca.

79.10 m²

Charmant condo de style loft au cachet industriel situé dans l'historique usine des biscuits Whippet. Unité rare sur deux étages avec une hauteur de plafonds de 12 pieds au premier et de plus de 8 pieds au sous-sol. Murs de briques d'origine, poutres et plafonds de bois ajoutent aux commodités du lieu. Espace de vie ouvert et lumineux. Possibilité d'une deuxième chambre fermée. À proximité de la Promenade Ontario, du métro Viau, autobus au coin, BIXI en face, parc directement en façade et stationnement sans vignette dans la rue. Situé en cul-de-sac, offrant une tranquillité exceptionnelle. Une opportunité unique dans un immeuble emblématique.

Detailed information

Characteristics

Property Type
Condo
Year of construction
1906
Type of building
Detached
Trade possible
Building dimensions
4.81 m x 6.28 m - irr
Living Area
79.10 m²
Lot dimensions
Deed of Sale Signature
30 days
Zoning
Residential
Pool
Water supply
Municipality
Parking (total)
Driveway
Roofing
Garage
Siding
Brick
Lot
Windows
Topography
Window Type
Distinctive Features
Energy/Heating
Electricity
View
Basement
Finished basement, 6 feet and over
Proximity
University, Public transport, High school, Elementary school, Bicycle path, Park - green area, Hospital, Daycare centre, Cegep, Highway
Bathroom
Sewage system
Municipal sewer
Equipment available
Entry phone
Available services
Fire detector, Roof terrace, Garbage chute
Easy access
Elevator
Heating system
Electric baseboard units
Dimensions
Width of the building
4.81 m
Depth building
6.28 m
Living area
79.10 m²
Fees and taxes
School taxes :
$299 (2025)
Municipal Taxes :
$2,567 (2025)
Total
$2,866
Expenses / Energy (per year)
Energy cost
$811
Co-ownership fees
$3,504
Municipal evaluation
Year
2024
Lot
$110,800
Building
$292,400
Total
$403,200
Read more Read less

Room dimensions

Room(s) : 5    |   Bedroom(s) : 1    |   Bathroom(s) : 1    |    Powder room(s) : 0

Room(s)
Level
Dimensions
Type of flooring
Additional information
Hallway
Ground floor
4.10x4.7 ft.  
Ceramic tiles
Kitchen
Ground floor
10.9x7.11 ft.  
Ceramic tiles
Dining room
Ground floor
20.0x10.1 ft.  
Wood
Living room
Ground floor
13.9x9.5 ft.  
Wood
Other
Basement
13.8x6.5 ft.  
Wood
Bathroom
Basement
8.5x5.4 ft.  
Ceramic tiles
Primary bedroom
Basement
14.2x10.9 ft.   - irr
Wood
Read more Read less

Inclusions


Tous les luminaires, rideaux et tringles.

Exclusions


Climatiseur portatif, réfrigérateur, cuisinière, lave-vaisselle, laveuse et sécheuse.

Addenda


*** VISITE LIBRE DIMANCHE LE 7 DÉCEMBRE 2025 de 14h00 à

16h00 ***

*VOIR VISITE VIRTUELLE 3D*

Bienvenue au 125-4951 rue Ontario E.

Habitez dans cette ancienne usine au cachet unique.

Rare condo sur deux étages d'une superficie habitable de

851 pieds carrés.

Premier étage :

*Hall d'entrée avec garde-robe très pratique; intégré dans

une des armoires de la cuisine

*Cuisine d'une belle dimension et bien pensée

*Salle à manger d'une grandeur idéale pour recevoir de la

visite

*Salon en coin très chaleureux, possibilité d'en faire une

chambre fermée facilement

*Hauteur des plafonds : 12'1''

Sous-sol :

*Couloir d'une belle largeur, possibilité d'y faire un

petit espace bureau

*Salle de bains avec son espace buanderie

*Rangement efficace sous les escaliers

*Chambre à coucher principale spectaculaire avec son mur

d'origine en briques et en pierres

*Hauteur des plafonds : 8'7''

*** Il est très facile à tout moment de stationner

directement devant l'immeuble. ***

Une visite vous charmera!

Read more Read less

Calculators

Purchase price :
Interest rate :
Amortization:
Down payment:
Mortgage amount:
Ville:
Purchase price:
Payment :
You must specify the amount of the payment.
Payment frequency :
Interest rate :
Amortization period :
Down payment

In the same district