Vous devez vous connecter pour ajouter des inscriptions à vos favoris.
Connexion
Demandez une visite ou des informations

Jaclyn Rabin
Courtier immobilier résidentiel et commercial
Cellulaire : 5149283581
1506-1528, Sherbrooke O.,
app. 2007,
Montréal (Ville-Marie)
No Centris MC16827274
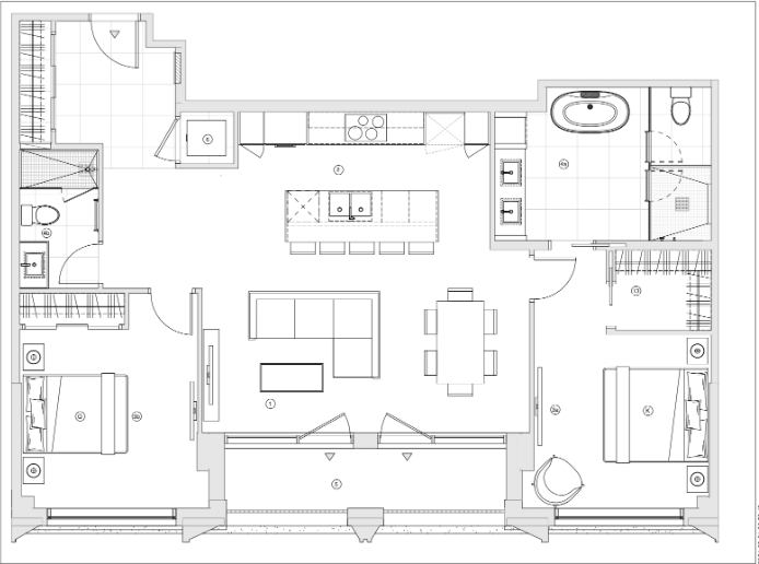
7 Pièce(s)
2 Chambre(s)
2 Salle(s) de bains
1 198.00 pi. ca.
Occasion exclusive au projet Le Sherbrooke : reprenez le contrat d’achat d’une rare suite exécutive offrant 2 chambres et 2 salles de bain, livraison prévue à l’été 2026. Réalisé par Broccolini au cœur du Mille Carré Doré, ce condo de prestige propose une disposition spacieuse, un stationnement intérieur, ainsi que des vues imprenables sur la montagne et la rue Sherbrooke depuis le 20e étage — le tout avec des commodités 5 étoiles. Une opportunité rare à ne pas manquer.
Pièce(s) : 7 | Chambre(s) : 2 | Salle(s) de bains : 2 | Salle(s) d'eau : 0
Réfrigérateur, cuisinière, four, four à micro-ondes, plaque de cuisson à induction, laveuse, sécheuse
L’immeuble offre : -Service de conciergerie 24 h -Service de voiturier offert -Services à la carte disponibles sur demande -Systèmes de domotique et de bâtiment intelligents intégrés pour un confort et une sécurité accrus -Entrée par porte-cochère donnant sur une cour intérieure d’inspiration européenne -Grand hall d’entrée à double hauteur -Salon de divertissement -Espace de travail collaboratif avec accès Wi-Fi -Salle de colis réfrigérée pour les livraisons sensibles à la température -Commerces au rez-de-chaussée pour un quotidien simplifié -Piscine intérieure luxueuse avec couloir de nage -Bain vapeur, sauna et vestiaires inspirés des spas -Centre de mise en forme ultramoderne -Studio privé pour yoga et entraînement personnalisé -Simulateur de golf virtuel L’emplacement offre : -Emplacement prestigieux dans le Mille Carré Doré -À deux pas du Musée des beaux-arts et des galeries d’art -Entouré de boutiques de luxe, cafés et restaurants raffinés -Accès facile au métro, transports en commun et grands axes -Proximité du parc du Mont-Royal et des commodités du centre-ville