15, Rue des Émeraudes,
app. 1010,
Repentigny (Repentigny) No Centris 22841982
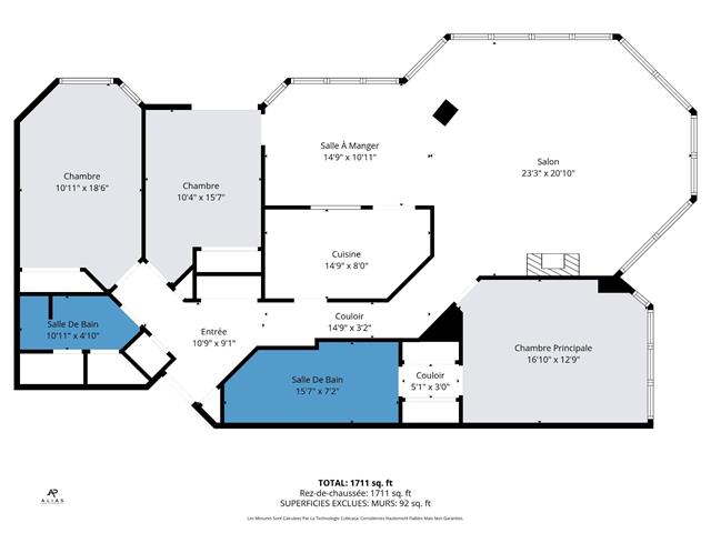
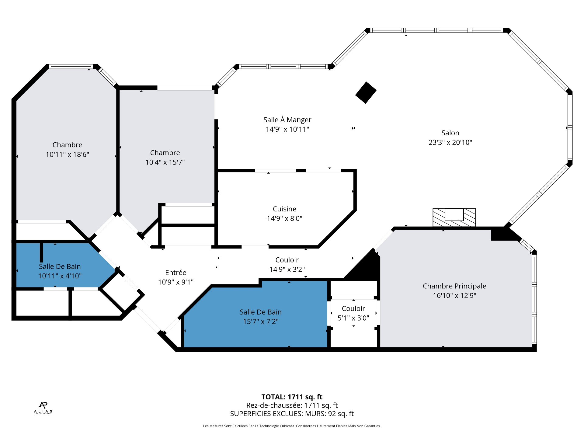
9 Pièce(s)
3 Chambre(s)
2 Salle(s) de bains
1 723.75 pi. ca.
Immense condo de luxe en bordure du fleuve saint-Laurent à Repentigny.Orientation sud est au 10 ième étage.Situé près de tous les services.Offrant une vue époustouflante grâce à son immense fenestration sur l'eau,grand espace dont on se lasse jamais dans un cadre de vie prestigieux, cette copropriéte saura vous charmer.3 chambres à coucher.Profitez de 2 garages intérieurs,situés près des ascenseurs, d'un système de surveillance, ainsi que d'aires communes exceptionnelles : spa, piscine intérieure, salle d'entraînement, salle de billard et plus encore.Un style de vie exclusif où confort, sécurité et élégance se rencontrent.Occupation rapide!
Informations détaillées
Caractéristiques
Genre de propriété
Condo
Année de construction
1990
Type de bâtiment
Détaché (Isolé)
Possibilité d'échange
Dimensions du bâtiment
Superficie habitable
1 723.75 pi. ca.
Dimensions du terrain
Prise de possession
30 jours
Zonage
Résidentiel
Système d'égouts
Municipal
Piscine
Intérieure, Creusée, Chauffée
Approvisionnement en eau
Municipalité
Stationnement (total)
Allée
Revêtement de la toiture
Membrane élastomère
Garage
Intégré, Double largeur ou plus
Revêtement
Brique
Terrain
Fenestration
Aluminium
Topographie
Type de fenestration
Oscillo-battant
Particularités du site
Aucun voisin à l'arrière, Navigable, Bordé par l'eau, Accès à l'eau
Énergie/Chauffage
Électricité
Vue
Panoramique, Sur l'eau
Sous-sol
Proximité
Transport en commun, École secondaire, École primaire, Piste cyclable, Parc-espace vert, Garderie/CPE, Cegep, Autoroute/Voie rapide
Salle(s) de bains
Douche indépendante, Attenante à la chambre principale
Stationnement
Au garage
Stationnement cadastré (inclus dans le prix)
Garage
Équipement disponible
Thermopompe centrale, Système d'alarme, Interphone, Balcon privé, Installation aspirateur central
Services disponibles
Détecteur d'incendie, Espace de stationnement pour visiteur, Spa, Espace de rangement intérieur, Piscine intérieure, Système de détection de fuite d'eau, Salle d'exercice, Cour, Espace pour bicyclette, Balcon/Terrasse, Aires communes