Vous devez vous connecter pour ajouter des inscriptions à vos favoris.
Connexion
Demandez une visite ou des informations

Michel Salomon-Beaudin
Courtier immobilier résidentiel et commercial
Cellulaire : 4504304207
100, Boul. J.-S.-Archambault,
app. 203,
Terrebonne (Terrebonne)
No Centris 9081441
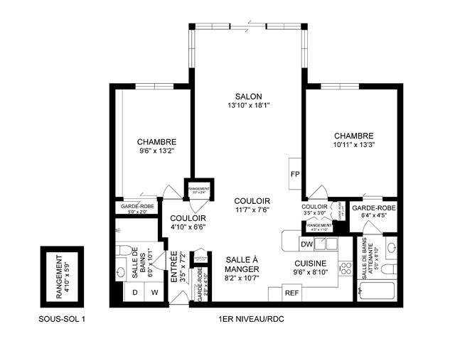
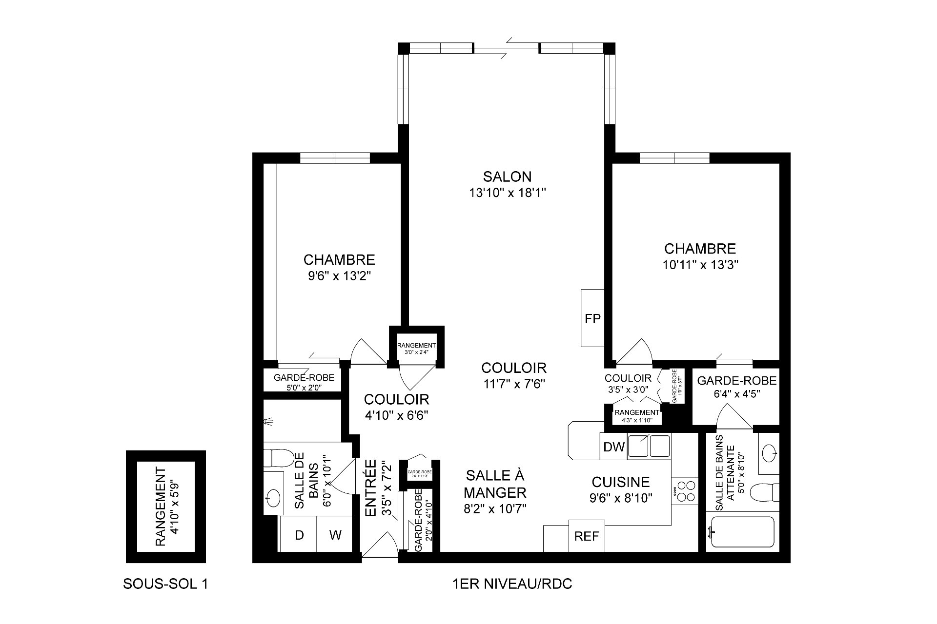
8 Pièce(s)
2 Chambre(s)
2 Salle(s) de bains
1 052.70 pi. ca.
Découvrez ce superbe condo de 1 057,7 pc à Terrebonne, baigné de lumière grâce à une fenestration abondante, entretenu avec soin et rénové au gout du jour. Vous serez séduit par sa cuisine moderne et fonctionnelle, son salon avec foyer et ses 2 chambres spacieuses, dont une suite principale avec walk-in et salle de bain privée. Une seconde salle de bain complète avec espace lavage, un garage chauffé, un stationnement extérieur pour les visiteurs et un espace de rangement intérieur comblent le tout. À proximité des écoles, parcs, Cégep, autoroute, golf, transports en commun et bien plus encore. Une visite s'impose!
Pièce(s) : 8 | Chambre(s) : 2 | Salle(s) de bains : 2 | Salle(s) d'eau : 0
Stores, rideaux, fixtures, thermopompes murale x2, hotte, foyer au bois, lave-vaisselle.
Découvrez ce superbe condo de 1 057,7 pc situé dans le
secteur recherché
de Terrebonne, un véritable coup de coeur alliant
luminosité exceptionnelle
grâce à une fenestration généreuse, entretien impeccable et
rénovations au
goût du jour. Dès l'entrée, vous serez charmé par la
cuisine moderne et
Voir plus Voir moins