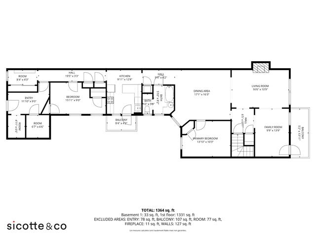
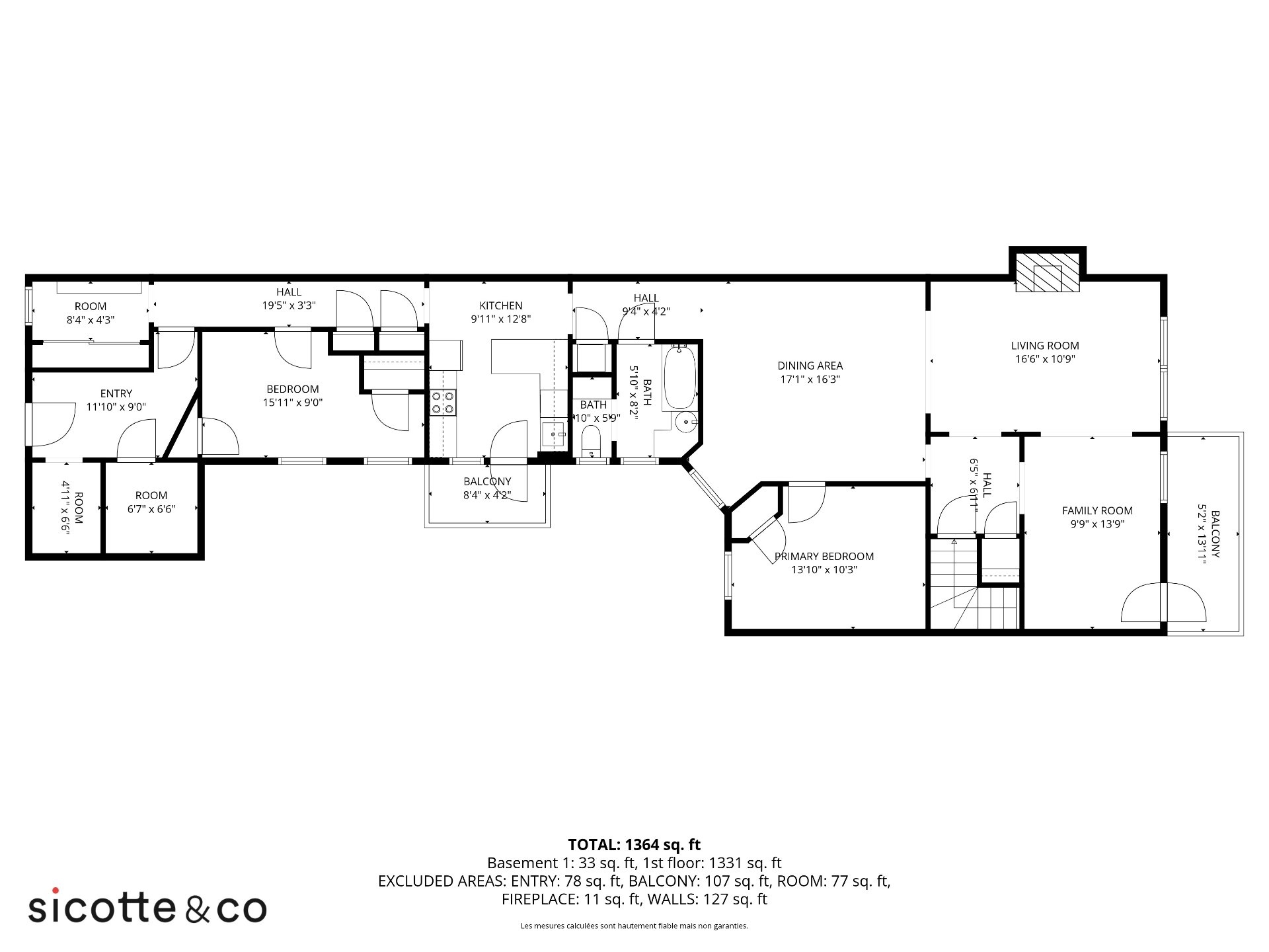
Situé au dernier étage d'un triplex, ce superbe appartement se distingue par sa luminosité exceptionnelle, son cachet architectural et ses volumes généreux. L'aire de vie comprend un vaste salon et une salle à manger, prolongés par une salle familiale / espace télévision ouvrant sur un balcon. La propriété offre deux chambres à coucher, un bureau, une salle de bain, une cuisine lumineuse et fonctionnelle ainsi qu'un espace de stationnement extérieur. Idéalement située au coeur de Victoria Village, à quelques pas du Parc Westmount, cette adresse recherchée allie élégance, tranquillité et qualité de vie.
Informations détaillées
Caractéristiques
Genre de propriété
Condo
Année de construction
1905
Type de bâtiment
En rangée
Possibilité d'échange
Dimensions du bâtiment
Superficie habitable
1 359.48 pi. ca.
Dimensions du terrain
Prise de possession
30 jours
Zonage
Résidentiel
Système d'égouts
Municipal
Piscine
Approvisionnement en eau
Municipalité
Stationnement (total)
Allée
Revêtement de la toiture
Garage
Revêtement
Terrain
Fenestration
Topographie
Type de fenestration
Particularités du site
Énergie/Chauffage
Gaz naturel
Vue
Sous-sol
Proximité
Université, Transport en commun, École secondaire, École primaire, Piste cyclable, Parc-espace vert, Hôpital, Garderie/CPE, Cegep, Autoroute/Voie rapide