You must log in to add entries to your favorites.
Log in
Request a visit or information

Chris Papachristou
Residential and Commercial Real Estate Broker
Cellular : 4506822000
Office : 5142476449
2334, Boul. des Seigneurs,
Terrebonne (Terrebonne)
Centris No. 13001291
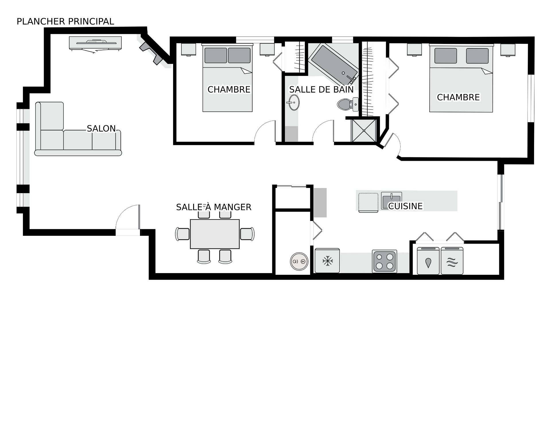
6 Room(s)
2 Bedroom(s)
1 Bathroom(s)
1,022.00 sq. ft.
This property stands out for its exceptional brightness and generous living spaces, featuring a well-designed layout that maximizes comfort and functionality. The rooms are spacious and well-proportioned, including good-sized bedrooms that are ideal for a family or for anyone seeking an elegant and comfortable living environment.
Room(s) : 6 | Bedroom(s) : 2 | Bathroom(s) : 1 | Powder room(s) : 0
Lighting fixtures, kitchen hood, blinds, curtains and rods, dishwasher, air conditioner
Tablet in the living room and bedroom
Welcome to this bright and spacious condo located in a
sought-after area of Terrebonne. Offering a functional and
well-divided layout, this unit combines comfort and
convenience in a peaceful setting.
Featuring 2 well-sized bedrooms and a bathroom, the condo
offers comfortable living spaces ideal for couples, small
families, or professionals. The large living room and
Read more Read less