Vous devez vous connecter pour ajouter des inscriptions à vos favoris.
Connexion
Demandez une visite ou des informations

Michel Salomon-Beaudin
Courtier immobilier résidentiel et commercial
Cellulaire : 4504304207
59, 13e Avenue,
Deux-Montagnes
No Centris 13588535
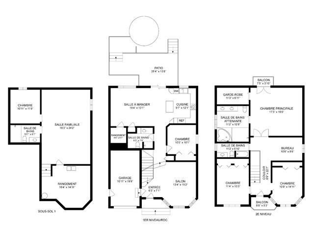
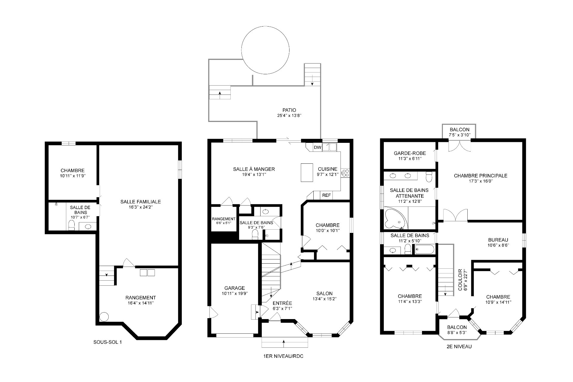
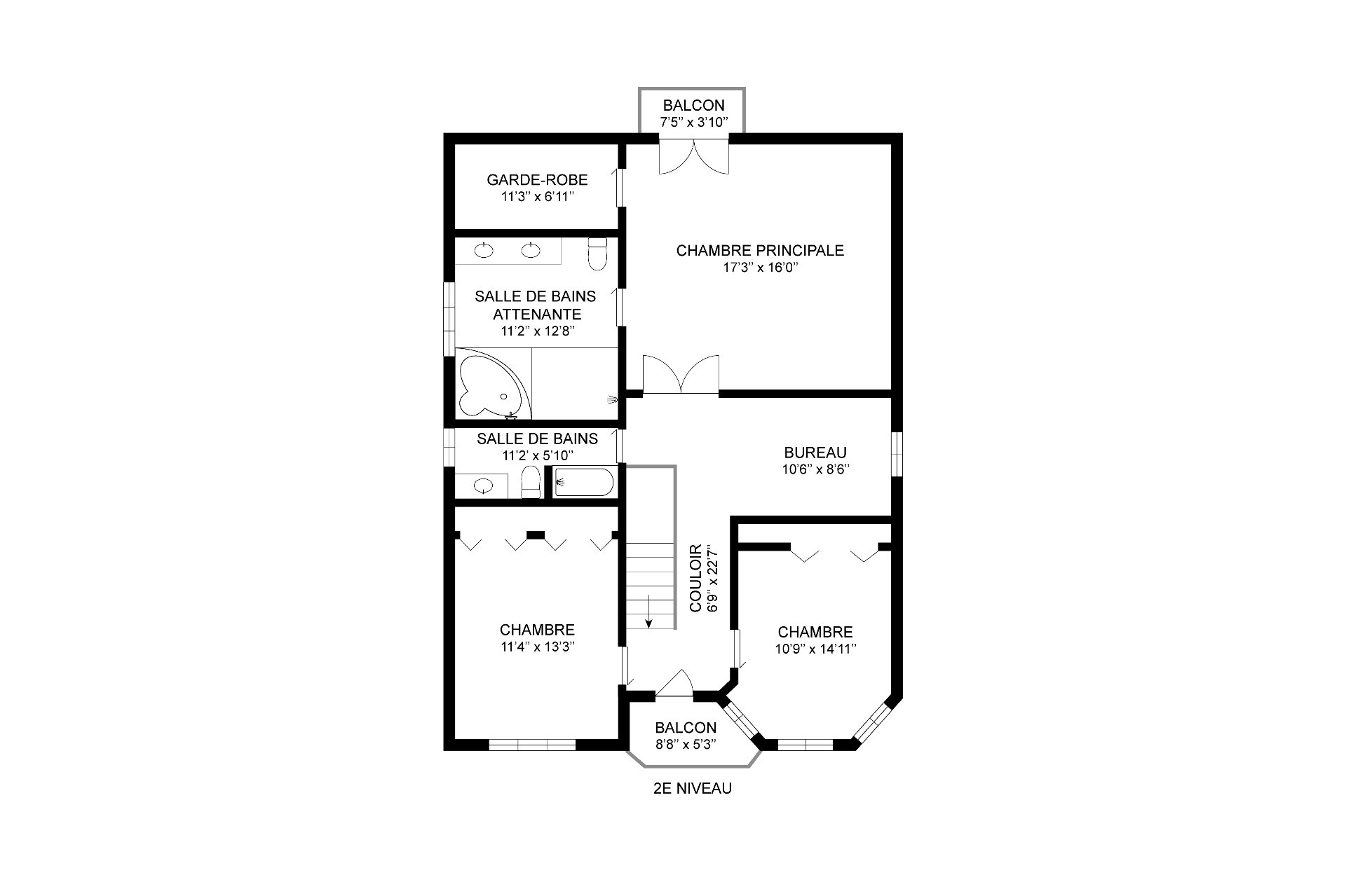
17 Pièce(s)
5 Chambre(s)
4 Salle(s) de bains
Superbe demeure à Deux-Montagnes! Bondée de lumière grâce à ses grandes fenêtres, elle offre une cuisine entièrement rénovée au goût du jour, 5 chambres dont une suite principale spectaculaire avec balcon, walk-in et salle de bain privée digne d'un hôtel de luxe. 3 autres salles de bains complètes, sous-sol fini et polyvalent avec planchers chauffants, garage chauffé et 5 stationnements extérieurs. Terrain de 4828,6 pc, cour clôturée avec patio en cèdre, piscine chauffée et grand cabanon chauffé/éclairé. Près de tout : autoroute, écoles, golf, hôpital, REM, train, parcs, transports en commun. Un bijou clés en main à visiter sans tarder!
Pièce(s) : 17 | Chambre(s) : 5 | Salle(s) de bains : 4 | Salle(s) d'eau : 0
Stores, rideaux, fixtures, piscine et accessoires, thermopompe de piscine, système d'alarme, climatiseur central, aspirateur central et accessoires, ouvre porte de garage électrique, échangeur d'air.
Superbe demeure située à Deux-Montagnes, dotée d'une
luminosité remarquable grâce à ses grandes fenêtres et
constamment améliorée au fil
des ans, offrant un confort haut de gamme et une qualité de
vie optimale.
Au rez-de-chaussée, on découvre un salon très lumineux, une
cuisine
Voir plus Voir moins