10392, Av. St-Charles,
Montréal (Ahuntsic-Cartierville) No Centris 23065204
8 Pièce(s)
4 Chambre(s)
2 Salle(s) de bains
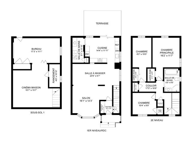
Située au 10392 Avenue Saint-Charles, à un coin de rue de la Promenade Fleury, cette maison à deux étages avec sous-sol offre un cadre de vie recherché au coeur d'Ahuntsic. Le rez-de-chaussée propose une aire de vie lumineuse et une cuisine fonctionnelle donnant accès à la terrasse et à la cour arrière avec piscine hors terre. À l'étage, trois chambres et une salle de bain avec bain et douche séparés. Le sous-sol comprend un cinéma maison. Deux stationnements en tandem. À distance de marche des écoles, commerces, restaurants, transports et pistes cyclables.
Informations détaillées
Caractéristiques
Genre de propriété
Maison à étages
Année de construction
1910
Date de livraison prévue
01-07-2026
Type de bâtiment
Jumelé
Possibilité d'échange
Dimensions du bâtiment
6.31 m x
10.26 m
Superficie habitable
Dimensions du terrain
10.67 m x 30.48 m - Irr
Prise de possession
Zonage
Résidentiel
Système d'égouts
Municipal
Piscine
Hors-terre, Chauffée
Approvisionnement en eau
Municipalité
Stationnement (total)
Allée
Revêtement de la toiture
Bardeaux d'asphalte
Garage
Revêtement
Terrain
Fenestration
Topographie
Type de fenestration
Particularités du site
Énergie/Chauffage
Électricité
Vue
Sous-sol
Totalement aménagé, 6 pieds et plus
Proximité
Transport en commun, École secondaire, École primaire, Piste cyclable, Parc-espace vert, Hôpital, Garderie/CPE, Cegep, Autoroute/Voie rapide
Piscine et ses accessoires (toile de piscine 2025) ,chauffe-eau de piscine(2024), table et chaises extérieures, divan extérieur, tous les meubles et le réfrigérateur dans le cabanon, meuble en bois sur le patio, ridea...
Piscine et ses accessoires (toile de piscine 2025) ,chauffe-eau de piscine(2024), table et chaises extérieures, divan extérieur, tous les meubles et le réfrigérateur dans le cabanon, meuble en bois sur le patio, rideaux et stores dans toute la maison, meuble d'entrée sur mesure, foyer à l'éthanol, miroir mural du salon, caisson sur le mur de la salle à manger, tous les luminaires, à l'exception de celui suspendu au SS, meuble-miroir de la salle de bain à l'étage, suite dans l'addenda...
Support (rack) de télé du salon principal , Barre de son du salon principal, laveuse-sécheuse, Réfrigérateur, cuisinière, micro-onde, foyer au gaz à l'extérieur, luminaire suspendu au sous-sol.
Addenda
(Suite des inclusions: Miroirs des salles de bain (étage et
RDC), caméras de surveillance, lave-vaisselle, borne de
recharge électrique, cinéma maison et fauteuils, l'auvent
rétractable électrique extérieur.)
Située au 10392 Avenue Saint-Charles, à seulement un coin
de rue de la réputée Promenade Fleury, cette superbe maison
à deux étages avec sous-sol propose un cadre de vie
exceptionnel au coeur d'un des secteurs les plus prisés
d'Ahuntsic.
Dès l'entrée, le rez-de-chaussée séduit par sa belle aire
de vie lumineuse, offrant une ambiance chaleureuse et
conviviale. Les espaces sont bien pensés et favorisent une
circulation fluide entre le salon, la salle à manger et la
cuisine. Cette dernière, à la fois élégante et
fonctionnelle, s'ouvre directement sur la terrasse et la
cour arrière, créant une parfaite continuité entre
l'intérieur et l'extérieur. La cour, agrémentée d'une
piscine hors terre, constitue un véritable espace de
détente pour profiter pleinement des beaux jours en famille
ou entre amis.
À l'étage, la maison offre trois chambres de bonnes
dimensions. La salle de bain complète comprend un bain et
une douche séparés, alliant confort et fonctionnalité pour
le quotidien.
Le sous-sol ajoute une valeur considérable à la propriété
avec un espace cinéma maison, parfait pour les soirées
cinéma, les moments de détente ou les réceptions. Cet étage
offre également une grande polyvalence selon vos besoins.
À l'extérieur, la propriété dispose de deux espaces de
stationnement en tandem, un atout recherché dans le secteur.
Son emplacement est tout simplement remarquable : à
distance de marche de plusieurs écoles, garderies,
épiceries, pharmacies, restaurants, cafés, transports en
commun et pistes cyclables. Le tout dans un environnement
familial, dynamique et verdoyant, reconnu pour sa qualité
de vie incomparable.
Une propriété qui combine emplacement de choix, espaces
généreux et mode de vie urbain recherché, une occasion à ne