Vous devez vous connecter pour ajouter des inscriptions à vos favoris.
Connexion
Demandez une visite ou des informations

Amélie Jolicoeur
Courtier immobilier résidentiel et commercial agréé
Cellulaire : 5142815501
Bureau : 5149634900
4435, Rue Marquette,
app. 2,
Montréal (Le Plateau-Mont-Royal)
No Centris 10620164
9 Pièce(s)
2 Chambre(s)
1 Salle(s) de bains
1 281.00 pi. ca.
Maison de ville contemporaine d'exception au coeur du Plateau Mont-Royal ! Alliant design européen, élégance et confort, cette propriété unique s'étend sur trois étages aux volumes lumineux et aux finitions haut de gamme. Une mezzanine aménagée en vaste bureau offre un espace de travail inspirant. Profitez d'une terrasse au rez-de-chaussée avec plancher chauffant et foyer au gaz naturel, ainsi que d'une immense terrasse privée en cèdre sur le toit avec vue spectaculaire sur le Mont-Royal. Un parfait équilibre entre luxe, sérénité et vie urbaine.
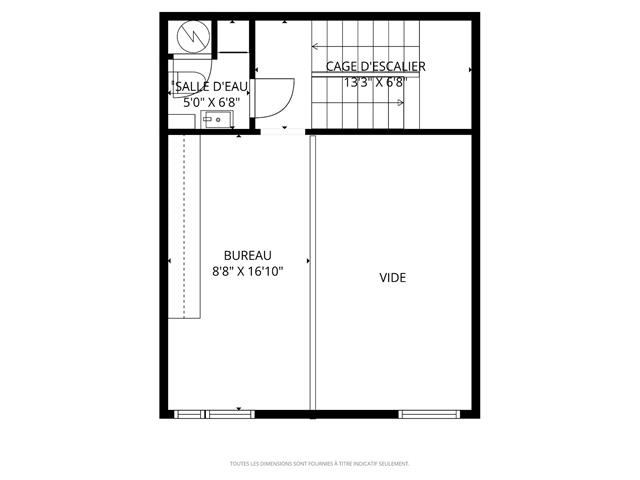
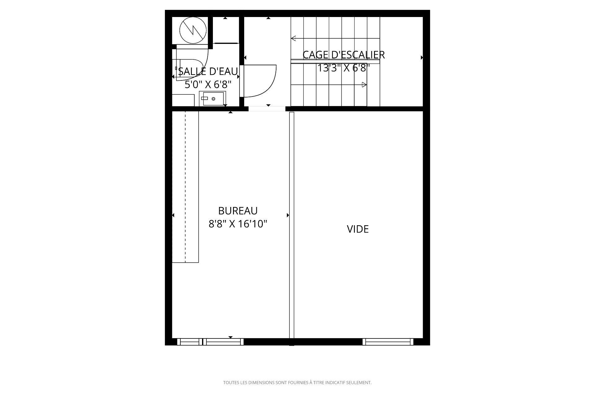
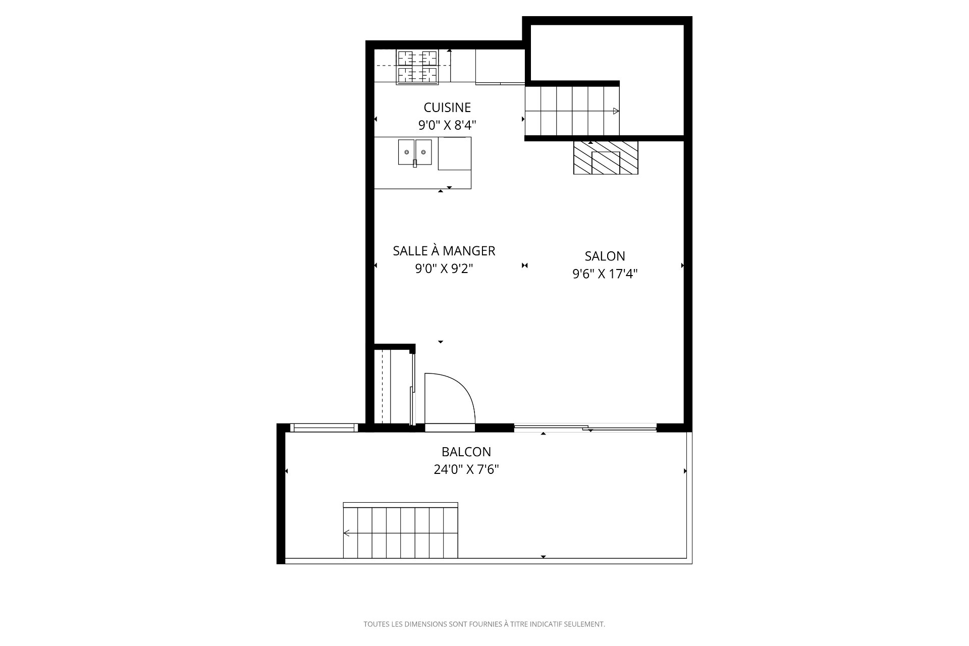
Pièce(s) : 9 | Chambre(s) : 2 | Salle(s) de bains : 1 | Salle(s) d'eau : 1
Réfrigérateur, lave-vaiselle, laveuse, sécheuse, aspirateur central et ses accessoires, 2 thermopompes, stores, luminaires, meubles intégrés sur mesure bureau et bibliothèque.
Cuisinière
Une maison de ville d'exception au coeur du Plateau --
contemporaine et parfaitement pensée alliant élégance
européenne, tranquillité et vie urbaine.
Entièrement conçu en 2014 par la firme Blouin-Tardif,
finition haute gamme cette demeure sur trois étages joue
avec les volumes et la lumière : une mezzanine
spectaculaire surplombe le salon et le foyer Montigo,
Voir plus Voir moins