Vous devez vous connecter pour ajouter des inscriptions à vos favoris.
Connexion
Demandez une visite ou des informations

Michel Salomon-Beaudin
Courtier immobilier résidentiel et commercial
Cellulaire : 4504304207
17, Rue Maurice-Tessier,
Blainville
No Centris 12941730
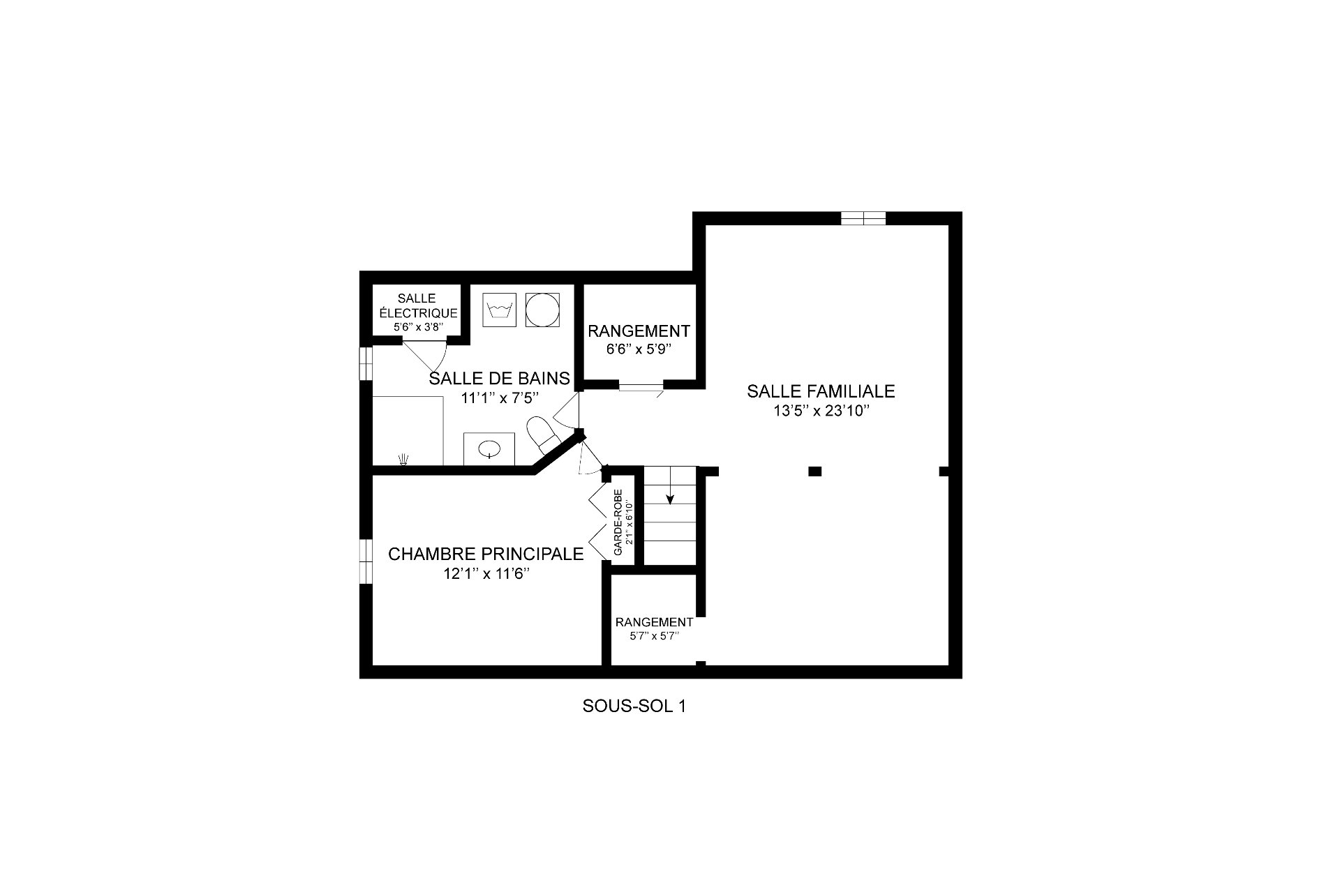
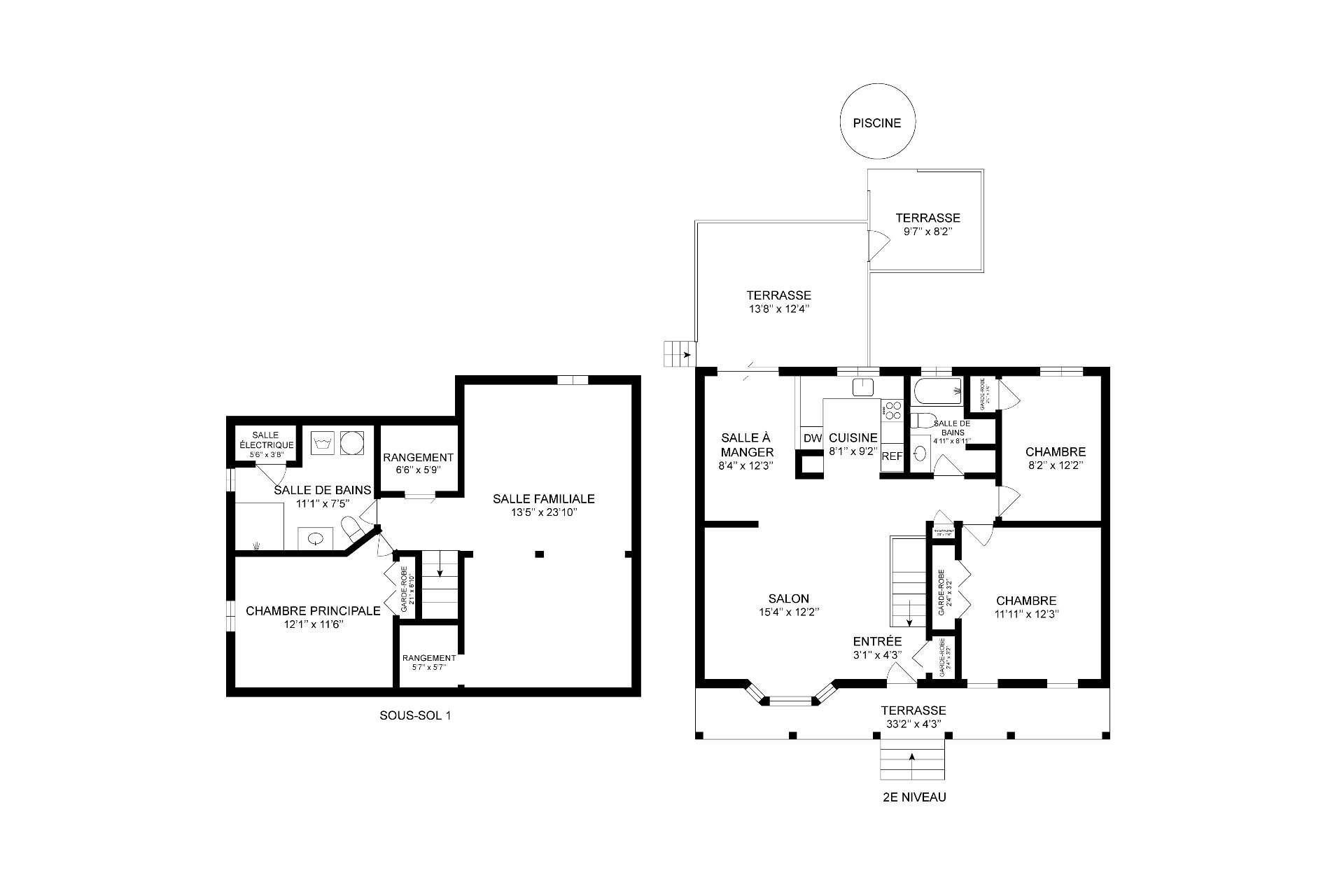
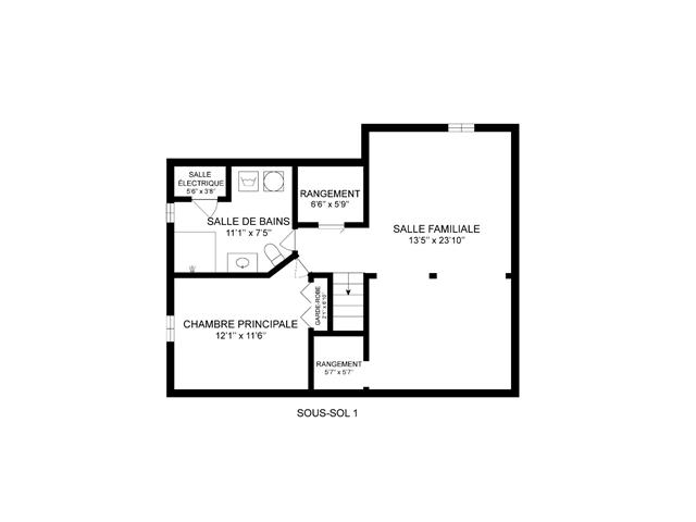
13 Pièce(s)
3 Chambre(s)
2 Salle(s) de bains
Sublime demeure au coeur de Blainville sur une rue cul-de-sac, offrant luminosité abondante grâce à son aire de vie ouverte et maintes améliorations au fil des ans. Le magnifique salon agrémenté de superbes planchers de bois s'ouvre sur une cuisine fonctionnelle aux armoires de bois. La propriété propose 3 chambres et 2 salles de bains, dont une récemment ajoutée avec douche vitrée et espace lavage. Le vaste sous-sol polyvalent a été rénové avec soin. À l'extérieur, profitez d'un beau terrain intime, cour clôturée, grand patio, terrasse, piscine hors terre et cabanon. Accès rapide à toutes les commodités essentielles. À visiter sans tarder!
Pièce(s) : 13 | Chambre(s) : 3 | Salle(s) de bains : 2 | Salle(s) d'eau : 0
moteur d'aspirateur central, stores, rideaux, lave-vaisselle, hotte, cabanon, piscine et accessoires.
Sublime demeure située au coeur de Blainville, offrant une
luminosité
abondante grâce à son aire de vie ouverte, un entretien
impeccable et de
nombreuses améliorations apportées au fil des ans. Une
propriété où le confort et fonctionnalité se rencontrent.
Rez-de-chaussée :
Voir plus Voir moins