Vous devez vous connecter pour ajouter des inscriptions à vos favoris.
Connexion
Demandez une visite ou des informations

Sally Alibay
Courtier immobilier résidentiel
Cellulaire : 5147014763
6896, Boul. Julien-Bouthillier,
Longueuil (Saint-Hubert)
No Centris 17338905
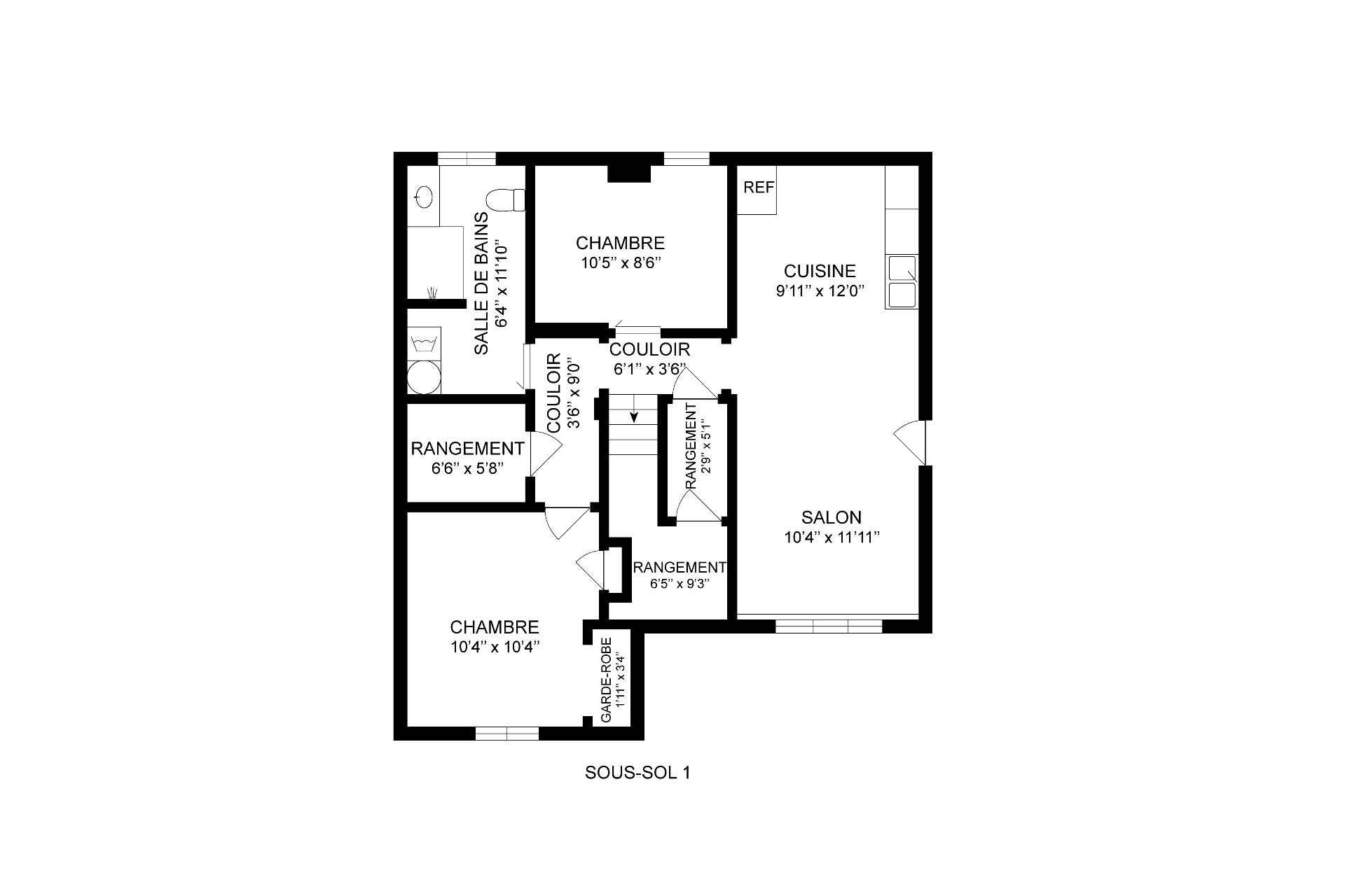
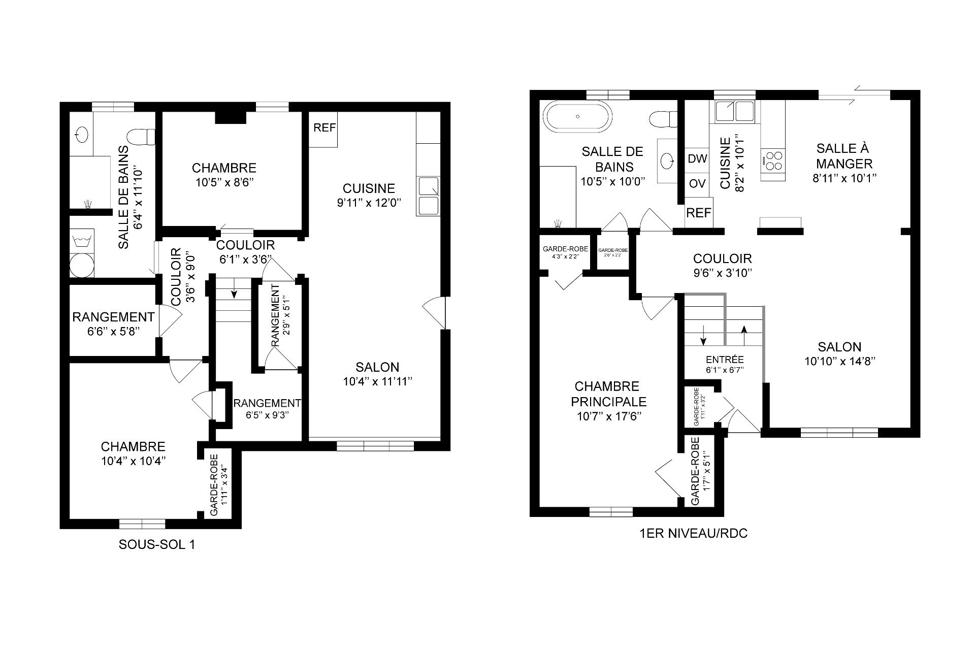
12 Pièce(s)
3 Chambre(s)
2 Salle(s) de bains
880.00 pi. ca.
Maison offrant une configuration idéale pour la vie de famille ou un projet bigénérationnel, située dans un secteur recherché de Saint-Hubert, près du Parc de la Cité. Le rez-de-chaussée propose un espace de vie lumineux, une cuisine ouverte, une grande chambre principale et une salle de bain rénovée. Le sous-sol réaménagé comprend deux chambres, une seconde salle de bain rénovée, une cuisine avec espace de vie et un accès indépendant. Cour arrière aménagée avec terrasse en composite et pavé uni, parfaite pour profiter de moments en famille. Emplacement de choix, près des parcs, écoles et transports en commun et axes routiers. A visiter !
Pièce(s) : 12 | Chambre(s) : 3 | Salle(s) de bains : 2 | Salle(s) d'eau : 0
lave-vaisselle, cuisinière, thermopompe murale, les luminaires et fixtures, stores
Le filtre a osmose inversé sous l'évier de la cuisine, toutes les affaires personnelles du vendeur
Une maison pensée pour accueillir deux générations sous le
même toit
Dans un secteur recherché de Saint-Hubert, à deux pas du
Parc de la Cité, cette propriété soigneusement entretenue
et grandement améliorée au fil des dernières années se
distingue par sa configuration idéale pour une famille ou
un projet bigénérationnel.
Voir plus Voir moins