Vous devez vous connecter pour ajouter des inscriptions à vos favoris.
Connexion
Demandez une visite ou des informations

Alexandre Fortin
Courtier immobilier résidentiel et commercial
Cellulaire : 4505223639
Bureau : 4505343370
Télécopieur : 4505343484
6155, Ch. de Cedarville,
Ogden
No Centris 21367097
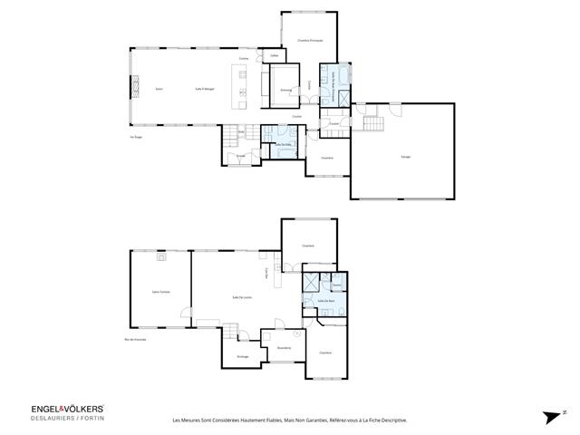
15 Pièce(s)
3 Chambre(s)
3 Salle(s) de bains
Vivre à Ogden, c'est choisir l'espace, la nature et le calme, tout en bénéficiant d'un accès privilégié au lac Memphrémagog. Cette résidence unifamiliale est implantée sur un vaste terrain boisé d'environ deux acres et offre un accès au lac. La maison propose des espaces de vie ouverts et lumineux, marqués par un plafond cathédrale et une belle hauteur sous plafond. Avec un total de quatre chambres à coucher, un rez-de-jardin aménagé, une piscine creusée chauffée et un garage double, la propriété répond autant aux besoins d'une famille qu'à ceux d'une résidence de villégiature quatre saisons. N'hésitez pas à nous contacter pour une visite !
Pièce(s) : 15 | Chambre(s) : 3 | Salle(s) de bains : 3 | Salle(s) d'eau : 0
Voir annexe inclusions - exclusions
Voir annexe inclusions - exclusions
Implantée sur le paisible chemin de Cedarville à Ogden,
cette propriété unifamiliale s'inscrit dans un
environnement naturel remarquable, où le lac Memphrémagog
et les paysages montagneux rythment le quotidien.
L'emplacement permet de profiter d'un accès au lac à courte
distance de marche, incluant quais partagés et droit
d'amarrage notarié, offrant une réelle connexion avec le
plan d'eau au fil des saisons. Vue sur le mont Owl's Head.
Voir plus Voir moins