You must log in to add entries to your favorites.
Log in
Request a visit or information

Michel Salomon-Beaudin
Residential and Commercial Real Estate Broker
Cellular : 4504304207
92, Rue des Pistoles,
Blainville
Centris No. 13782589
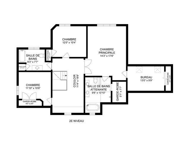
22 Room(s)
5 Bedroom(s)
3 Bathroom(s)
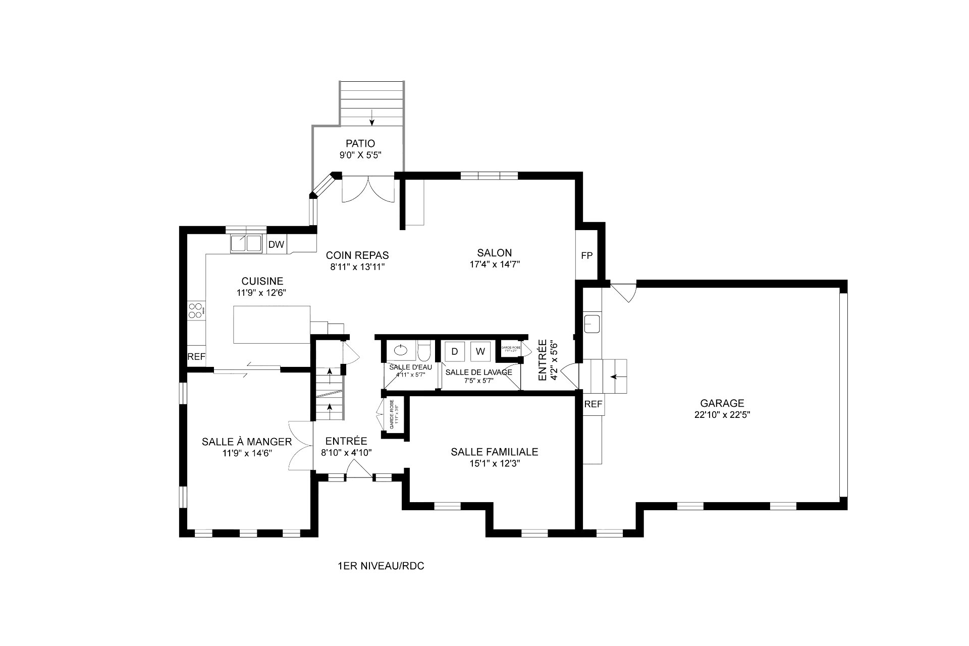
Impressionnante demeure située sur un coin de rue dans le secteur recherché de Blainville! Offrant une excellente luminosité et un entretien irréprochable, elle propose 5 chambres, 3 salles de bains dont une privée à la spacieuse chambre principale avec bain, douche vitrée et double lavabo, ainsi qu'une salle d'eau. Elle dispose d'un vaste sous-sol avec cinéma maison et bar, puis d'un grand garage double attaché et chauffé. Immense terrain de 12 446 pc, sublime cour clôturée, bordée de haies et paysagée avec piscine creusée et chauffée, terrasses, gazebo et cabanon. À proximité de toutes les commodités essentielles, ne tardez pas à visiter!
Room(s) : 22 | Bedroom(s) : 5 | Bathroom(s) : 3 | Powder room(s) : 1
borne de recharge voiture électrique, ouvre porte de garage, système d'alarme, stores, rideaux, fixtures, lave-vaisselle, piscine creusée et accessoires, cabanon, cuisine extérieure, gazebo, cinéma maison, bar et tabo...
borne de recharge voiture électrique, ouvre porte de garage, système d'alarme, stores, rideaux, fixtures, lave-vaisselle, piscine creusée et accessoires, cabanon, cuisine extérieure, gazebo, cinéma maison, bar et tabourets, aspirateur central et accessoires, thermopompe centrale, hotte, foyer.
Read more Read lessSauna
Impressionnante demeure située sur un coin de rue dans le
secteur recherché de Blainville! Offrant une excellente
luminosité, des matériaux de qualité et un entretien
irréprochable, cette propriété a bénéficié de diverses
rénovations au fil des dernières années, afin de répondre
aux plus hauts standards de confort et d'élégance.
Rez-de-chaussée:
Read more Read less