A home designed for the comfort of the whole family. This cottage offers a functional and bright interior, where the abundance of natural light creates a harmonious atmosphere for everyday living. Upstairs, five good sized bedrooms and two renovated bathrooms ensure peace of mind. The spacious living room open to the dining room highlights the home's generous volumes, while the practical kitchen features a dinette area and ample storage. The basement includes a playroom, a gym area, and a bathroom. Outside, the back garden surrounded by mature hedges offers privacy and summer enjoyment, complete with a children's play structure.
Detailed information
Characteristics
Property Type
Two or more storey
Year of construction
1953
Type of building
Semi-detached
Deed of Sale Signature
7 days
Water supply
Municipality
Garage
Fitted, Single width
Lot
Landscape, Land / Yard lined with hedges
Energy/Heating
Electricity
Proximity
University, Public transport, High school, Réseau Express Métropolitain (REM), Elementary school, Park - green area, Daycare centre, Highway, Other
Bathroom
Other, Adjoining to primary bedroom
Sewage system
Municipal sewer
Equipment available
Central air conditioning
Heating system
Air circulation
Lot dimensions (Sq. ft.)
476.40 m²
Read more
Read less
Room dimensions
Room(s) : 14 | Bedroom(s) : 7 | Bathroom(s)
: 3 | Powder room(s)
: 1
Room(s)
Level
Dimensions
Type of flooring
Additional information
Other
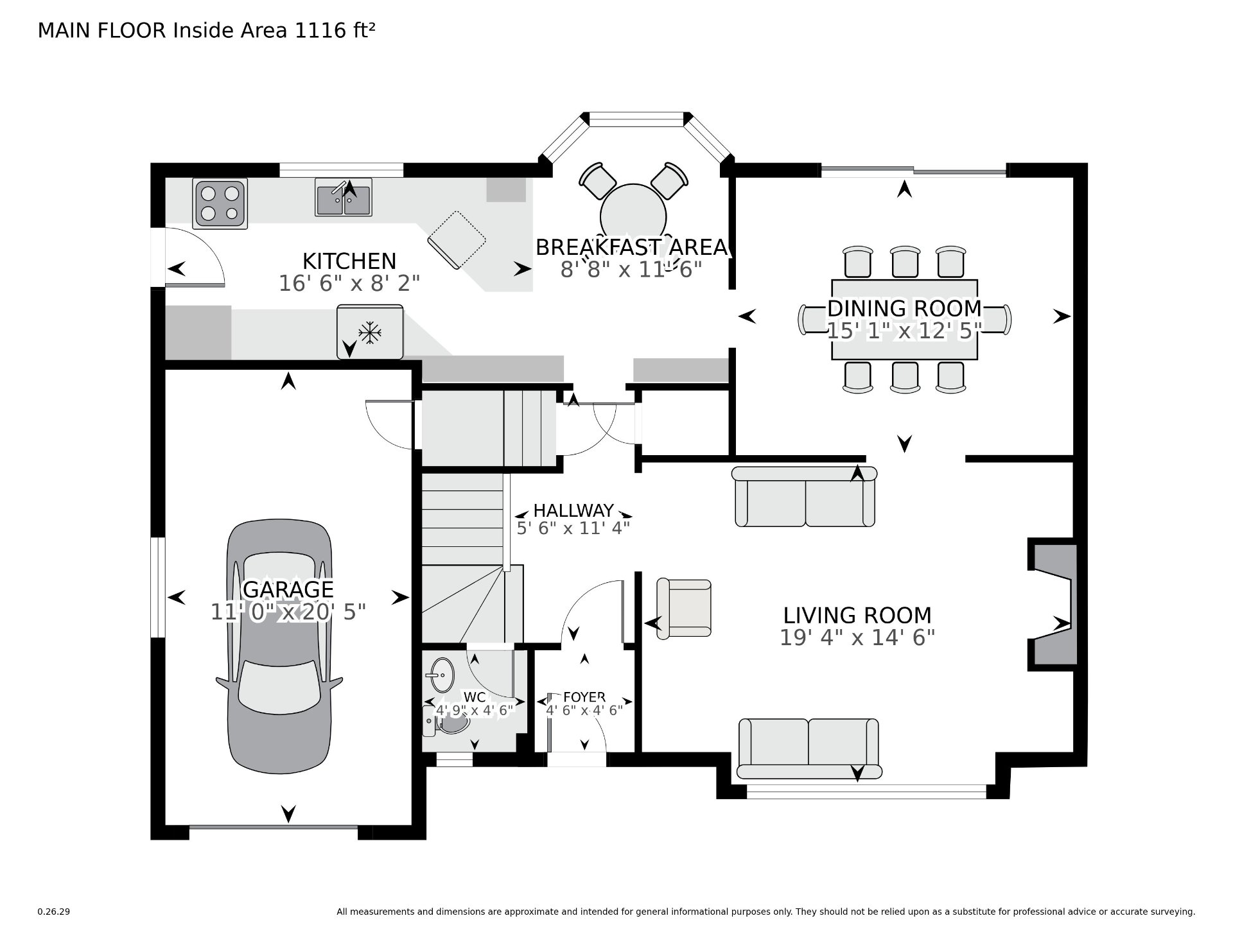
Ground floor
11.4x5.6 ft.
Wood
Living room
Ground floor
19.4x14.6 ft.
Wood
Dining room
Ground floor
15.1x12.5 ft.
Wood
door to garden
Kitchen
Ground floor
16.6x8.2 ft.
Ceramic tiles
door to garden
Dinette
Ground floor
11.6x8.8 ft.
Ceramic tiles
Washroom
Ground floor
4.9x4.6 ft.
Ceramic tiles
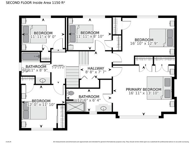
Primary bedroom
2nd floor
16.11x13.10 ft.
Wood
adjacent bathroom
Bathroom
2nd floor
12.6x6.4 ft.
Ceramic tiles
ensuite
Bedroom
2nd floor
16.10x12.9 ft.
Wood
closet
Bedroom
2nd floor
11.11x8.10 ft.
Wood
closet
Bedroom
2nd floor
11.11x9.0 ft.
Wood
Bathroom
2nd floor
7.11x8.9 ft.
Ceramic tiles
Bedroom
2nd floor
12.0x11.10 ft.
Wood
Family room
Basement
24.8x11.9 ft.
Bathroom
Basement
10.6x4.10 ft.
Other
Basement
16.3x7.11 ft.
Laundry room
Basement
6.3x6.2 ft.
Ceramic tiles
Read more
Read less
Inclusions
Fridge, stove, kitchen hood, dishwasher, microwave, washer, dryer, blinds (where installed), light fixtures (where installed).
Exclusions
Heating, electricity, hot water, connection to internet, connection to cable and telephone (if needed), snow removal, lawn mowing and lawn care.
Addenda
THE HOME
*Spacious living areas, ideal for family life
*5 generously sized bedrooms upstairs
*2 renovated bathrooms upstairs, including 1 ensuite in the
primary bedroom
*Large living room flowing into a spacious dining room,
perfect for entertaining
*Practical kitchen with garden view, breakfast nook, and
plenty of storage
*Finished and well-organized basement featuring a bright
playroom, laundry room, bathroom, and small exercise area
*Intimate backyard with lots of greenery
*Functional terrace to enjoy the outdoors
*Children's play structure included
*Mature hedges providing complete privacy
*Flower beds adding charm and color to the space
THE LOCATION
*Located in a family-friendly neighborhood in Ville
Mont-Royal, known for its quality of life and peaceful
atmosphere
*Just minutes from reputable primary and secondary schools
*Close to daycares and educational services, making daily
life easier for parents
*Within walking distance of essential shops, including
grocery stores, pharmacies, cafés, and other local services
*Easy access to Rockland Centre and Royalmount with their
many popular boutiques
*Well-served by public transit, with nearby bus lines and
access to the future REM, improving commutes to
Édouard-Montpetit and downtown Montreal
*Close to major highways, providing quick access to
Montreal, surrounding suburbs, and the Laurentians
*Surrounded by numerous parks and green spaces--perfect for
walks, outdoor activities, and family leisure
*Safe and sought-after neighborhood, appreciated for its
peaceful and family-oriented environment
Read more
Read less
Calculators