+
You must log in to add entries to your favorites.
Log in
Request a visit or information

Robin Duguay
Certified Residential and Commercial Real Estate Broker AEO
Cellular : 8196652190
Fax : 8199869080
40, Mtée Robinson,
Ripon
Centris No. 23098264
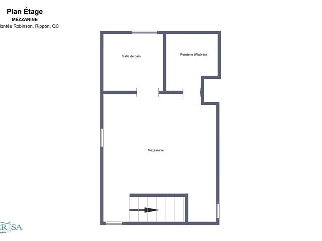
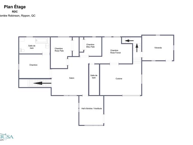
12 Room(s)
4 Bedroom(s)
2 Bathroom(s)
1,837.00 sq. ft.
Room(s) : 12 | Bedroom(s) : 4 | Bathroom(s) : 2 | Powder room(s) : 1