You must log in to add entries to your favorites.
Log in
Request a visit or information

Michel Salomon-Beaudin
Residential and Commercial Real Estate Broker
Cellular : 4504304207
337, Rue Perrault,
Rosemère
Centris No. 15094995
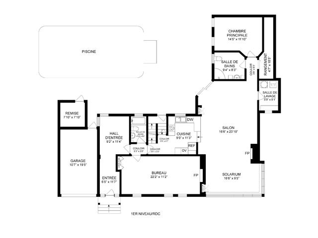
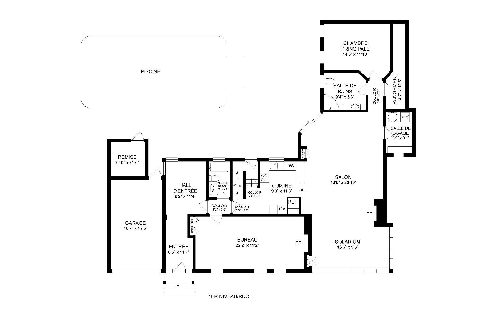
17 Room(s)
4 Bedroom(s)
3 Bathroom(s)
Nichée dans le secteur prisé de Rosemère, cette magnifique et très vaste maison en cul-de-sac bien entretenue, séduit par son unicité et son charme intemporel. Baignée de lumière, elle offre une aire de vie ouverte, un agréable solarium, ainsi qu'un grand terrain de 13 854 pc avec piscine creusée et chauffée. La spacieuse chambre principale propose un walk-in et une salle de bains attenante. On y retrouve également trois autres chambres et deux salles de bains supplémentaires. Vous profiterez d'un garage , d'un sous-sol rénové et d'une localisation idéale près des écoles, parcs, golf, autoroute et de la Rivière des Mille-Îles. À VOIR !
Room(s) : 17 | Bedroom(s) : 4 | Bathroom(s) : 3 | Powder room(s) : 0
Stores, rideaux, fixtures, lave-vaisselle, réfrigérateur, four, thermopompe centrale, système d'alarme, foyer, piscine creusée et accessoires, 2 cabanons, appareils de la salle de gym, génératrice au gaz.
Nichée dans le secteur prisé et prestigieux de Rosemère,
cette magnifique
propriété située dans un cul-de-sac tranquille se distingue
par son charme
intemporel, son bon entretien et son unicité. Avec sa belle
luminosité, son
garage attaché, et son emplacement idéal elle offre un
cadre de vie
Read more Read less