+
You must log in to add entries to your favorites.
Log in
Request a visit or information

Martine Demers
Residential and Commercial Real Estate Broker
Cellular : 5147749563
Office : 4507053612
, Rue de la Rivière,
Saint-Alphonse-Rodriguez
Centris No. 26718944
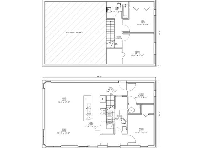
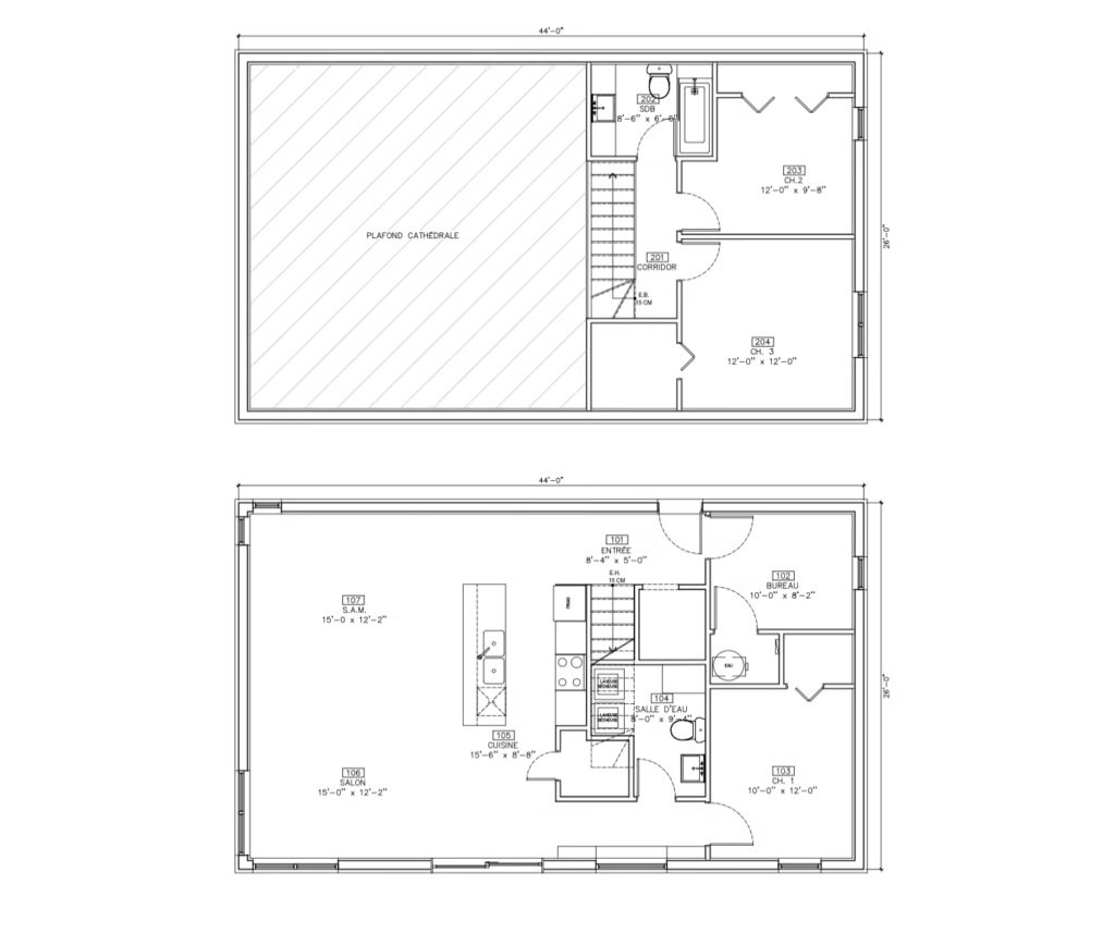
10 Room(s)
4 Bedroom(s)
1 Bathroom(s)
Room(s) : 10 | Bedroom(s) : 4 | Bathroom(s) : 1 | Powder room(s) : 1