Vous devez vous connecter pour ajouter des inscriptions à vos favoris.
Connexion
Demandez une visite ou des informations

Isabelle Naud
Courtier immobilier résidentiel et commercial
Cellulaire : 5145761766
Bureau : 5143839999
10328, 10330 Rue Tolhurst,
Montréal (Ahuntsic-Cartierville)
No Centris 16896261
10 Pièce(s)
3 Chambre(s)
2 Salle(s) de bains
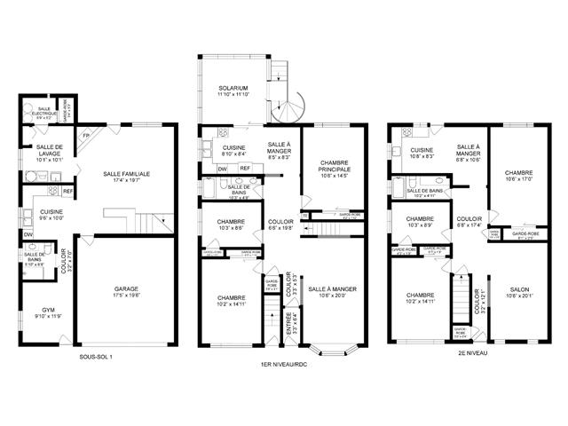
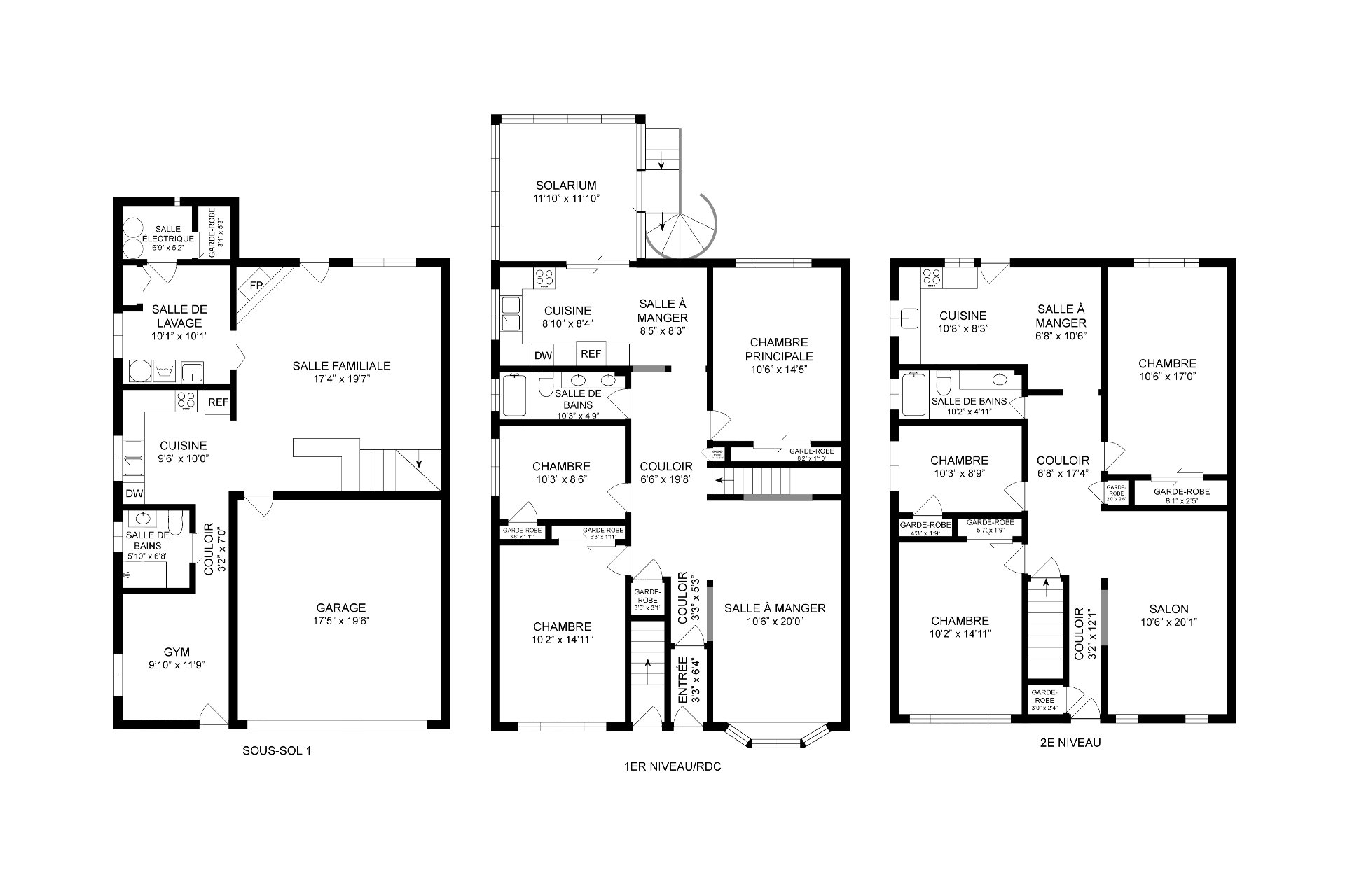
Offrant confort, luminosité et polyvalence, ce duplex à double occupation constitue une excellente opportunité pour un propriétaire-occupant ou un investisseur. L'unité du rez-de-chaussée propose trois chambres, de généreux espaces de vie et une cuisine lumineuse donnant sur un solarium avec accès direct à une vaste cour arrière. Le sous-sol, avec entrée indépendante, comprend une seconde cuisine et une salle de bain complète. À l'étage, un lumineux 5½ avec balcons avant et arrière. Garage double et emplacement recherché près de la rue Fleury Ouest, des commerces, écoles, parcs et transports.
Pièce(s) : 10 | Chambre(s) : 3 | Salle(s) de bains : 2 | Salle(s) d'eau : 0
Frigo, cuisinière, 2 climatiseurs muraux, luminaires, lave-vaisselle, tempo, souffleuse, meubles de patio, laveuse-sécheuse, rideaux, sofa salle à dîner.
1 chauffe-eau loué
Offrant une combinaison de confort, de luminosité et de
polyvalence, ce magnifique duplex à double occupation
représente une opportunité exceptionnelle tant pour un
propriétaire-occupant que pour un investisseur à la
recherche d'un immeuble bien situé et soigneusement
entretenu.
L'unité principale, située au rez-de-chaussée, se distingue
Voir plus Voir moins