Vous devez vous connecter pour ajouter des inscriptions à vos favoris.
Connexion
Demandez une visite ou des informations

Jean-François Fauveau
Courtier immobilier résidentiel
Cellulaire : 4388651506
3881, 3883 Boul. Henri-Bourassa O.,
Montréal (Saint-Laurent)
No Centris 15985649
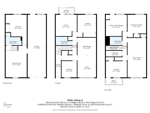
6 Pièce(s)
3 Chambre(s)
2 Salle(s) de bains
Duplex à double occupation à fort potentiel situé au coeur de Saint-Laurent. Deux logements vacants offrant une grande flexibilité pour propriétaire-occupant ou investisseur. Possibilité d'ajouter un logement au sous-sol (sous réserve des autorisations municipales) afin d'augmenter les revenus. Garage double et cour arrière clôturée sans voisin arrière, adossée à la voie ferrée. Nombreuses rénovations majeures effectuées. Emplacement recherché près du métro Côte-Vertu, REM, écoles, commerces, parcs et services.
Pièce(s) : 6 | Chambre(s) : 3 | Salle(s) de bains : 2 | Salle(s) d'eau : 0
Lumière, cabanon et module de jeu
Occasion exceptionnelle -- Duplex à fort potentiel au coeur
de Saint-Laurent
Idéalement situé au coeur même de Saint-Laurent, ce duplex
à fort potentiel avec double occupation représente une
opportunité rare, autant pour un propriétaire-occupant que
pour un investisseur. La propriété comprend deux logements
Voir plus Voir moins