Vous devez vous connecter pour ajouter des inscriptions à vos favoris.
Connexion
Demandez une visite ou des informations

Annie Benjamin
Courtier immobilier résidentiel et commercial
Cellulaire : 4509870033
Bureau : 4504352200
10855, Rue De Beauharnois,
Mirabel
No Centris 27505246
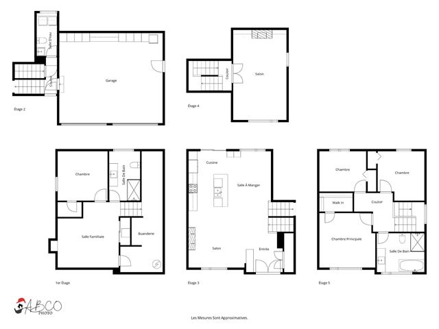
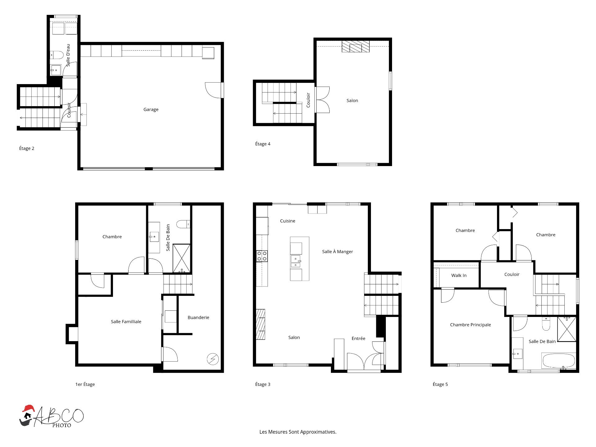
12 Pièce(s)
5 Chambre(s)
2 Salle(s) de bains
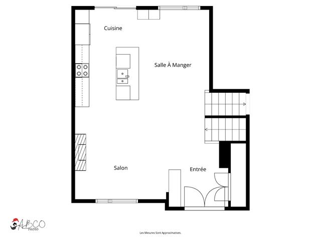
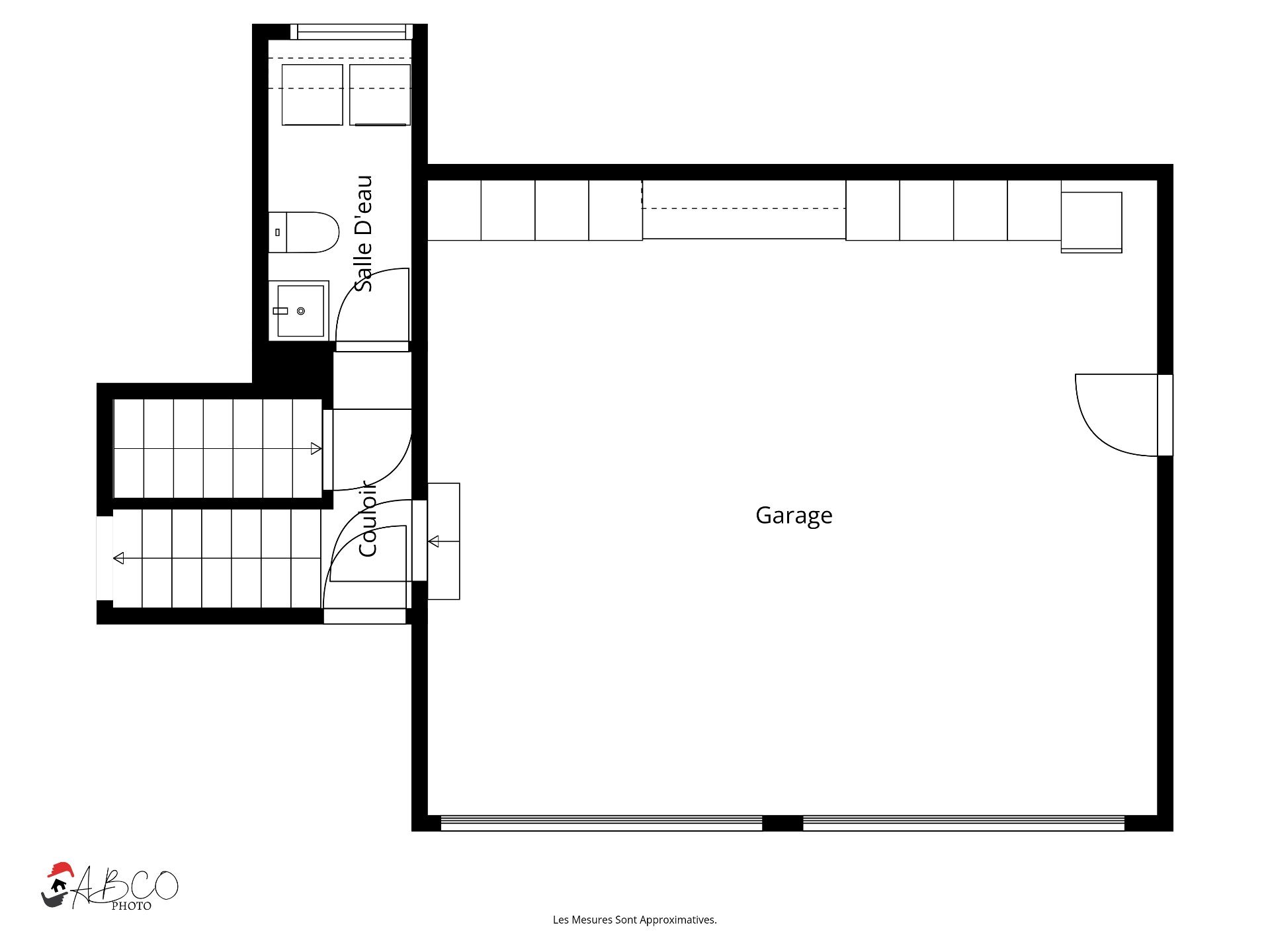
Située dans le quartier le plus prisé de Mirabel, cette élégante résidence, soigneusement décorée, propose une aire de vie conviviale, avec hall d'entrée ouvert sur le salon avec foyer au gaz, grande cuisine aux comptoirs de quartz et salle à manger lumineuse. Elle est composée de 5 chambres(4+1) et 2 salles de bain. Vous bénéficierez d'un confort en toutes saisons grâce au système de chauffage central. À l'extérieur, la cour arrière est un véritable resort; piscine creusée chauffée, espace feu/détente, salle à manger extérieure, cuisine d'été avec évier et 3 frigo. Le garage double, entièrement aménagé façon showroom, plaira aux passionnés.
Pièce(s) : 12 | Chambre(s) : 5 | Salle(s) de bains : 2 | Salle(s) d'eau : 1
Luminaires, speakers encastrés (4), pôles, stores, tablette du foyer, balayeuse central et accessoires, foyer au gaz au salon et à l'extérieur, foyer électrique de la chambre des maîtres, 2 ouvres porte de garage, the...
Luminaires, speakers encastrés (4), pôles, stores, tablette du foyer, balayeuse central et accessoires, foyer au gaz au salon et à l'extérieur, foyer électrique de la chambre des maîtres, 2 ouvres porte de garage, thermopompe de la piscine, 6 supports TV, système de caméra et BBQ Napoléon et 3 mini frigo extérieur, système d'alarme relié.
Voir plus Voir moinsRideaux, lave vaisselle, cellier, four micro-onde (non encastré), TV, cellier, miroir mural de la chambre maîtres, armoires/rangement du garage, haut-parleur Bose de la salle-familiale, TV extérieure, 2 speakers extér...
Rideaux, lave vaisselle, cellier, four micro-onde (non encastré), TV, cellier, miroir mural de la chambre maîtres, armoires/rangement du garage, haut-parleur Bose de la salle-familiale, TV extérieure, 2 speakers extérieur avec amplificateur et borne de recharge de voiture.
Voir plus Voir moinsSitué à proximité du centre commercial « Premium Outlets »,
le Domaine Vert Nord est un havre de paix pour toute la
famille. Situé à distance de marche du parc régional du
Domaine Vert, il offre une panoplie d'activités et de
renommée pour les amateurs de vélo de montagne, fatbike et
ski de fond. Les enfants s'épanouiront avec les modules de
jeu, la piscine et le parcours d'arbre en arbre. Deux
autres parcs complets sont aménagés dans le quartier (parc
Voir plus Voir moins