10395, Av. Curotte,
Montréal (Ahuntsic-Cartierville) No Centris 15806609
11 Pièce(s)
5 Chambre(s)
1 Salle(s) de bains
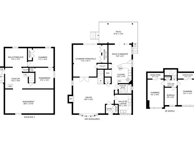
Située au 10395 Avenue Curotte, au coeur d'un secteur recherché d'Ahuntsic, cette charmante propriété familiale offre de généreux espaces et un emplacement de choix, à quelques pas de la Promenade Fleury. Répartie sur deux étages avec sous-sol, elle propose cinq chambres à coucher et une grande polyvalence d'aménagement. La cour arrière comprend une galerie, un cabanon et une piscine hors terre, parfaite pour l'été. Allée de stationnement. À proximité des parcs, pistes cyclables et d'écoles primaires, secondaires et collèges réputés.
Informations détaillées
Caractéristiques
Genre de propriété
Maison à étages
Année de construction
1951
Date de livraison prévue
08-05-2026
Type de bâtiment
Détaché (Isolé)
Possibilité d'échange
Dimensions du bâtiment
28.00 pi. x
38.00 pi.
Superficie habitable
Dimensions du terrain
15.24 m x 27.74 m
Prise de possession
Zonage
Résidentiel
Système d'égouts
Municipal
Piscine
Hors-terre
Approvisionnement en eau
Municipalité
Stationnement (total)
Fondation
Béton coulé
Allée
Asphalte
Revêtement de la toiture
membrane TPO rallonge 2007
Garage
Revêtement
Terrain
Patio
Fenestration
Topographie
Type de fenestration
Particularités du site
Énergie/Chauffage
Électricité
Vue
Sous-sol
6 pieds et plus
Proximité
Transport en commun, École secondaire, École primaire, Piste cyclable, Parc-espace vert, Hôpital, Garderie/CPE, Cegep, Autoroute/Voie rapide
réfrigérateur, cuisinière, lave-vaisselle, laveuse, sécheuse, balayeuse centrale, piscine hors terre et accessoires, thermopompe centrale, cabanon, meubles patio, système alarme relié, borne de recharge électrique, ch...
réfrigérateur, cuisinière, lave-vaisselle, laveuse, sécheuse, balayeuse centrale, piscine hors terre et accessoires, thermopompe centrale, cabanon, meubles patio, système alarme relié, borne de recharge électrique, chauffe-eau, stores, 2 armoires blanches en mélanine dans le bureau du 2e étage, micro-ondes.
Bibliothèque en teck du 2e étage (chambre du milieu), le système de son et son support mural de marque Bang & Olufsen qui est dans le salon du rez-de-chaussée.
Addenda
Située au 10395 Avenue Curotte, au coeur d'un des secteurs
les plus prisés d'Ahuntsic, cette charmante propriété
familiale se distingue par ses espaces généreux et son
emplacement exceptionnel, à seulement quelques pas de la
vibrante Promenade Fleury.
Déployée sur deux étages avec sous-sol, la maison offre une
grande superficie de vie, parfaitement adaptée aux besoins
d'une grande famille ou à ceux recherchant plusieurs
espaces fonctionnels. On y retrouve cinq chambres à
coucher, permettant d'aménager des chambres pour enfants,
un bureau à domicile, une salle de jeux ou encore des
chambres d'invités, selon vos besoins. Les pièces sont
lumineuses, bien proportionnées et offrent une circulation
fluide, créant une atmosphère chaleureuse et conviviale au
quotidien.
Le sous-sol propose de nombreuses possibilités
d'aménagement : salle familiale, espace de travail, salle
d'entraînement ou rangement supplémentaire, offrant une
flexibilité appréciable pour évoluer avec votre mode de vie.
À l'extérieur, la propriété séduit par sa cour arrière
idéale pour profiter pleinement des beaux jours. La galerie
permet d'accueillir repas et moments de détente, tandis que
la piscine hors terre promet de beaux étés en famille ou
entre amis. Un cabanon complète l'aménagement extérieur,
offrant un espace de rangement pratique pour les
équipements saisonniers. Une allée de stationnement ajoute
un confort recherché en milieu urbain.
L'emplacement est sans contredit l'un des grands atouts de
cette propriété. À distance de marche de la Promenade
Fleury, vous bénéficierez d'un accès direct à ses
restaurants, cafés, boutiques locales et services
essentiels. Le secteur est également reconnu pour son
environnement familial et verdoyant, avec plusieurs parcs,
pistes cyclables, ainsi que plusieurs écoles primaires,
secondaires et collèges réputés à proximité.
Une propriété bien située, offrant espace, qualité de vie