Vous devez vous connecter pour ajouter des inscriptions à vos favoris.
Connexion
Demandez une visite ou des informations

Michel Salomon-Beaudin
Courtier immobilier résidentiel et commercial
Cellulaire : 4504304207
22, Rue de l'Infanterie,
Blainville
No Centris 15368845
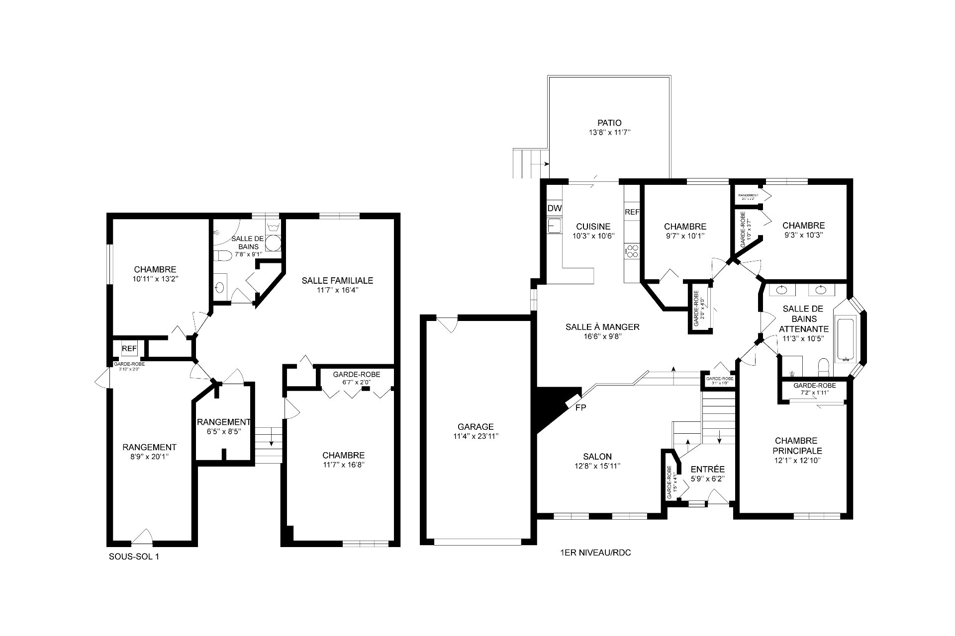
14 Pièce(s)
5 Chambre(s)
2 Salle(s) de bains
Superbe maison de plain-pied nichée dans le secteur prisé de Blainville, au design attrayant et à la luminosité exceptionnelle! Cette sublime demeure saura vous charmer par son entretien impeccable et ses rénovations de qualité, dont la cuisine en entier et les 2 salles de bains en 2019. Elle propose 5 chambres, dont une principale avec salle de bains attenante comprenant douche vitrée, bain luxueux et évier double. Elle offre un vaste sous-sol, un garage chauffé, ainsi qu'un terrain de 7045 pc avec piscine creusée, terrasse,gazebo, balcon et cabanon. Emplacement idéal près des écoles, parcs, transports et plus -- un vrai bijou à découvrir!
Pièce(s) : 14 | Chambre(s) : 5 | Salle(s) de bains : 2 | Salle(s) d'eau : 0
Stores, rideaux, fixtures, lave-vaisselle, cabanon, gazebo, piscine creusée et accessoires, aspirateur central et accessoires, thermopompe murale, système d'alarme, tempo.
Armoires du garage, génératrice, borne de recharge.
Superbe maison de plain-pied nichée dans le secteur prisé
de Blainville, se
distinguant par son architecture unique et attrayante, sa
luminosité
exceptionnelle, ainsi que par son entretien irréprochable.
Dès votre arrivée,
vous serez charmé par l'atmosphère accueillante et la
qualité des
Voir plus Voir moins