Vous devez vous connecter pour ajouter des inscriptions à vos favoris.
Connexion
Demandez une visite ou des informations

Isabelle Naud
Courtier immobilier résidentiel et commercial
Cellulaire : 5145761766
Bureau : 5143839999
10490, Rue Lajeunesse,
app. 307,
Montréal (Ahuntsic-Cartierville)
No Centris 11640454
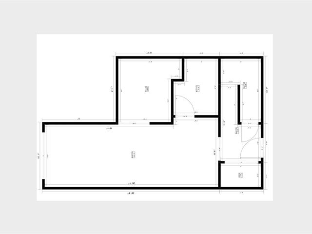
3 Pièce(s)
1 Chambre(s)
1 Salle(s) de bains
590.00 pi. ca.
Ce condo offre un espace de vie moderne avec terrasse privée. Proximité du métro Henri-Bourassa à 250 mètres et ascenseur dans le bâtiment pour un accès pratique. Profitez de la terrasse sur le toit avec vue panoramique sur le parc Ahuntsic. Situés près de la Promenade Fleury, ces condos offrent un accès privilégié à la vie locale. Contactez-nous dès aujourd'hui pour en savoir plus sur ces condos uniques face au Parc Ahuntsic.
Pièce(s) : 3 | Chambre(s) : 1 | Salle(s) de bains : 1 | Salle(s) d'eau : 0
Climatiseur mural, hotte, chauffe-eau.
CONDOS SOIGNEUSEMENT CONÇUS
Chaque condo est conçu avec soin pour offrir un espace de
vie moderne et fonctionnel. Profitez d'une terrasse privée
avec une vue imprenable, où vous pourrez vous détendre et
admirer la nature environnante.
À PROXIMITÉ DES TRANSPORTS EN COMMUN
La proximité du métro Henri-Bourassa, situé à seulement 250
Voir plus Voir moins